Ferienwohnung Weitblick mit Blick über Norderney

Kampstrasse - 26548 - Norderney

Objekt Nr.: 552-155402
Die Ferienwohnung Weitblick auf Norderney bietet einen herrlichen Blick über die Insel und modernen Komfort in zentraler Lage.
  • Schlafzimmer 2
  • Badezimmer 1
  • Wohnfläche 57 m²
  • Haustiere Nicht erlaubt
  • Kurzurlaub möglich Ja
  • Internet Ja
  • Geschirrspüler Ja
  • Nichtraucher Ja

Beschreibung

Weitblick

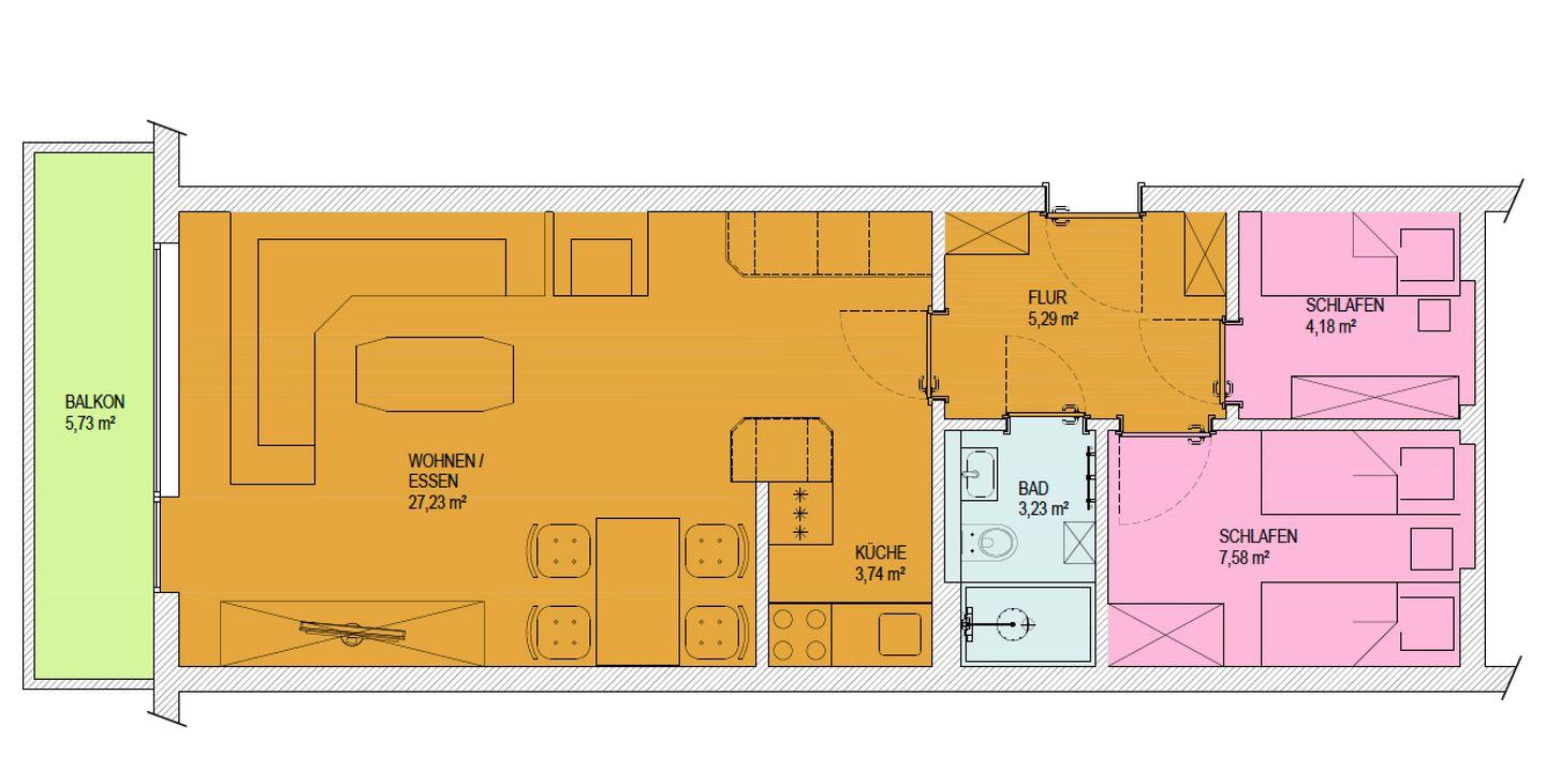
Die Ferienwohnung "Weitblick" befindet sich in der Kampstraße. Die Wohnung "Weitblick" liegt im dritten Stockwerk und bietet, wie der Name schon sagt, einen Blick über die Dächer von Norderney. Die Wohnung bietet auf ca. 57 Quadratmetern Platz für bis zu drei Personen und liegt direkt gegenüber der Inselkirche. Das Haus verfügt über keinen Aufzug. Die Einrichtung ist frisch und farbenfroh gestaltet. Die Wohnung verfügt über ein Wohnzimmer mit einer integrierten (voll ausgestatteten) Küchenzeile. Es gibt zwei Schlafzimmer, eines mit zwei Einzelbetten (0,80m x 2,00m) und eines mit einem Einzelbett (0,80m x 2,00m). Das moderne Badezimmer ist mit einer Dusche und einem WC ausgestattet. Ein kleines Highlight der Wohnung ist der nach Süden ausgerichtete Balkon. Für Fahrräder gibt es vor dem Haus Parkmöglichkeiten. Alternativ können Fahrräder auch im Keller abgestellt werden. Waschmaschine und Wäschetrockner befinden sich im Haus und stehen (für die gemeinschaftliche Nutzung gegen Münzeinwurf) zur Verfügung, was besonders für längere Aufenthalte von Vorteil ist. Haustiere (Hunde) sind in dieser Wohnung nicht erlaubt. Verlängerung der Bauphase: bis ca. Ende Juni 2026 ist die Sanierung abgeschlossen. Einige Balkone im Haus bis dahin evt. nicht nutzbar.

Raumaufteilung

  • Schlafzimmer, 1 Person
    • Kleiderschrank
    • Einzelbett
  • Schlafzimmer, 2 Personen
    • Kleiderschrank
    • 2 x Einzelbett

Unsere Gästebewertungen Externe Bewertungen

Keine eigene Gästebewertungen
4,5
14 externe Bewertungen
5,0
August 2025
Allgemein:
Familie mit Kind
4,3
Juli 2025
Allgemein:
Familie mit Kind
4,5
Juni 2025
Allgemein:
Paar
4,8
Mai 2025
Allgemein:
Gruppe
4,0
Mai 2025
Allgemein:
älteres Ehepaar
4,5
Mai 2025
Allgemein:
Paar
4,8
April 2025
Allgemein:
Familie mit Kind
5,0
Oktober 2024
Allgemein:
Paar
5,0
Mai 2024
Allgemein:
Paar
4,5
Mai 2024
Allgemein:
1
4,8
Juli 2023
Allgemein:
Familie mit Kind
4,3
Juni 2023
Allgemein:
Familie mit Kind
4,0
Juni 2023
Allgemein:
0
4,0
Juni 2023
Allgemein:
Gruppe

Gesamte Ausstattung

  • Bad

    • Haartrockner
    • Wäschetrockner
  • Basic

    • Kinder willkommen
    • Nichtraucher
    • Quadratmeter
      57 m²
    • Zimmer
      2
  • Entfernung

    • Strandentfernung
      450 m
  • Küche

    • Backofen
    • Gefrierfach
    • Küche
    • Spülmaschine
  • Unterkunft

    • Babybett
      1
    • Betten
      3
    • Einzelbetten
      3
    • Geschlossene Terrasse
    • Internet
    • Kleiderschrank
    • Safe
    • TV
    • Waschmaschine
    • WLAN

Kurzurlaub

Es besteht eine begrenzte Möglichkeit das ganze Jahr einen Kurzurlaub zu machen, typischerweise ausserhalb der Hochsaison.

Prices and calendar

Kalender

Ankunft
Vorheriger Monat Nächster Monat
  • Juni 2026
    MoDiMiDoFrSaSo
    231234567
    24891011121314
    2515161718192021
    2622232425262728
    272930
    28
  • Juli 2026
    MoDiMiDoFrSaSo
    2712345
    286789101112
    2913141516171819
    3020212223242526
    312728293031
    32
   Verfügbarkeit am ausgewählten Datum prüfen
Frei
Nicht frei
   Ankunft möglich
Dauer
Personen

Preis

Zeitraum
Ankunft
Abreise
Dauer
1 Woche
Personen
Keine Personen ausgewählt

Bitte beachten

Ankunftszeit wurde nicht ausgewählt.
Es wurden keine Personen ausgewählt.
Vertrags- und Mietbedingungen