Moderne Ferienwohnung mit Sauna nahe Strand

Knyphausenstrasse - 26548 - Norderney

Objekt Nr.: 552-155257
Moderne Ferienwohnung Maison & Spa Nº 2 in Norderney, nur 250m vom Strand, mit Sauna, Balkon und Terrasse.
  • Schlafzimmer 3
  • Badezimmer 2
  • Wohnfläche 130 m²
  • Haustiere 1
  • Kurzurlaub möglich Ja
  • Sauna Ja
  • Internet Ja
  • Geschirrspüler Ja
  • Nichtraucher Ja

Beschreibung

Villa Vie Maison & Spa Nº 2

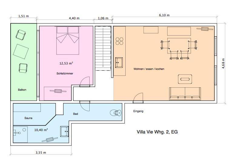
Die Ferienwohnung "Maison & Spa Nº 2" befindet sich in dem Haus "Villa Vie". Das Haus liegt in der Knyphausenstraße. Die "Maison & Spa Nº 2" erstreckt sich über zwei Etagen. Die Wohnung bietet mit ca. 130 Quadratmetern Platz für bis zu sechs Personen. Das macht sie ideal für Familien oder Gruppen von Freunden. Bis zum Strand sind es nur ca. 250m. Auch einige Restaurants, Cafés und andere Einkaufsmöglichkeiten sind nur wenige Gehminuten entfernt. Die Wohnung besticht durch ihre freundliche und designorientierte Einrichtung, jedes Detail wurde sorgfältig ausgewählt. Die Räume sind hell und offen gestaltet, mit hochwertigen Möbeln und modernen Annehmlichkeiten. Die Wohnung verfügt über drei Schlafzimmer. Alle Schlafzimmer sind mit Doppelbetten ausgestattet. Zudem gibt es zwei Bäder in der Wohnung. Beide sind mit einer Dusche ausgestattet. In einem Badezimmer befindet sich das Highlight der Wohnung, die finnische Sauna. Die Wohnung verfügt neben einer Terrasse auch über einen Balkon. Die offene Küche ist modern und voll ausgestattet und bietet einen Essbereich, welcher in den Wohnbereich übergeht. Hunde sind in dieser Wohnung erwünscht. Erlaubt ist maximal 1 Hund (Höhe maximal kniehoch). Die Hundewiese befindet sich in der Nähe des Fährhafens (kein Leinenzwang).

Raumaufteilung

  • Schlafzimmer, 2 Personen
    • Kleiderschrank
    • Doppelbett
  • Schlafzimmer, 2 Personen
    • Kleiderschrank
    • Doppelbett
  • Schlafzimmer, 2 Personen
    • Kleiderschrank
    • Doppelbett

Unsere Gästebewertungen Externe Bewertungen

Keine eigene Gästebewertungen
4,8
35 externe Bewertungen
5,0
März 2026
Allgemein:
Familie mit Kind
4,8
März 2026
Allgemein:
älteres Ehepaar
4,5
Februar 2026
Allgemein:
Familie mit Kind
5,0
Januar 2026
Allgemein:
Gruppe
5,0
Dezember 2025
Allgemein:
Paar
5,0
November 2025
Allgemein:
Gruppe
4,8
September 2025
Allgemein:
Gruppe
4,8
September 2025
Allgemein:
Gruppe
4,8
September 2025
Allgemein:
Gruppe
4,8
Mai 2025
Allgemein:
Gruppe
5,0
März 2025
Allgemein:
Gruppe
5,0
Februar 2025
Allgemein:
Familie mit Kind
5,0
Januar 2025
Allgemein:
Gruppe
4,8
Dezember 2024
Allgemein:
Gruppe
5,0
November 2024
Allgemein:
Gruppe
4,8
November 2024
Allgemein:
Gruppe
5,0
November 2024
Allgemein:
Gruppe
4,0
September 2024
Allgemein:
Gruppe
5,0
August 2024
Allgemein:
Familie mit Kleinkind
4,5
Juli 2024
4,8
Mai 2024
Allgemein:
Gruppe
4,8
Mai 2024
Allgemein:
Gruppe
4,0
März 2024
Allgemein:
Gruppe
4,8
Januar 2024
Allgemein:
Gruppe
5,0
Januar 2024
Allgemein:
Gruppe
5,0
Dezember 2023
Allgemein:
Gruppe
5,0
November 2023
Allgemein:
5
5,0
Oktober 2023
Allgemein:
Familie mit Kind
5,0
September 2023
Allgemein:
Gruppe
4,5
August 2023
Allgemein:
Familie mit Kind
5,0
Juni 2023
Allgemein:
3
4,3
Mai 2023
Allgemein:
Die Größe der Wohnung für sechs. Die Lage
4,3
März 2023
Allgemein:
Familie mit Kind
5,0
Februar 2023
Allgemein:
Familie mit Kind
4,5
November 2022
Allgemein:
Gruppe

Gesamte Ausstattung

  • Bad

    • Haartrockner
    • Wäschetrockner
  • Basic

    • Kinder willkommen
    • Nichtraucher
    • Quadratmeter
      130 m²
    • Zimmer
      4
  • Entfernung

    • Strandentfernung
      250 m
  • Küche

    • Backofen
    • Espressomaschine
    • Gefrierfach
    • Küche
    • Microwelle
    • Spülmaschine
  • Unterkunft

    • Babybett
      1
    • Betten
      6
    • Doppelbetten
      3
    • Geschlossene Terrasse
    • Internet
    • Kleiderschrank
    • Safe
    • Sauna
    • TV
    • Waschmaschine
    • WLAN

Kurzurlaub

Es besteht eine begrenzte Möglichkeit das ganze Jahr einen Kurzurlaub zu machen, typischerweise ausserhalb der Hochsaison.

Prices and calendar

Kalender

Ankunft
Nächster Monat
  • Mai 2026
    MoDiMiDoFrSaSo
    18123
    1945678910
    2011121314151617
    2118192021222324
    2225262728293031
    23
  • Juni 2026
    MoDiMiDoFrSaSo
    231234567
    24891011121314
    2515161718192021
    2622232425262728
    272930
    28
   Verfügbarkeit am ausgewählten Datum prüfen
Frei
Nicht frei
   Ankunft möglich
Dauer
Personen

Preis

Zeitraum
Ankunft
Abreise
Dauer
1 Woche
Personen
Keine Personen ausgewählt

Bitte beachten

Ankunftszeit wurde nicht ausgewählt.
Es wurden keine Personen ausgewählt.
Vertrags- und Mietbedingungen