Ferienwohnung Nordseeblick 108 auf Norderney

Kaiserstraße - 26548 - Norderney

Objekt Nr.: 552-155195
Bild 3
7 Übernachtungen
Ab EUR 807,-
4 Erwachsene 0 Kinder
Moderne Ferienwohnung Nordseeblick 108 auf Norderney mit Balkon und nur 85 m zum Strand.
  • Schlafzimmer 1
  • Badezimmer 1
  • Wohnfläche 44 m²
  • Haustiere Nicht erlaubt
  • Kurzurlaub möglich Ja
  • Internet Ja
  • Nichtraucher Ja

Beschreibung

Nordseeblick 108

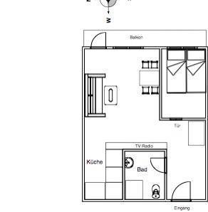
Die Ferienwohnung "Nordseeblick 108" befindet sich im zweiten Stock des Hauses "Nordseeblick". Das Haus liegt in der Kaiserstraße und ist mit einem Fahrstuhl ausgestattet. Die Wohnung bietet Platz für bis zu 4 Personen. Der Strand ist nur ca. 85m entfernt. Auch der Inselkern mit seinen zahlreichen Restaurants, Cafés oder anderen Einkaufsmöglichkeiten ist in wenigen Gehminuten erreichbar. Die Wohnung verfügt über ein Wohn- und Schlafzimmer mit einem Doppelbett. Die kleine Küchenecke ist mit einem 2-Platten-Ceranfeld ausgestattet. Ein Highlight der Wohnung ist der Balkon, der zur Landseite nach Osten ausgerichtet ist. Waschmaschine und Wäschetrockner befinden sich im Haus und stehen (für die gemeinschaftliche Nutzung gegen Münzeinwurf) zur Verfügung, was besonders für längere Aufenthalte von Vorteil ist. Hunde sind in dieser Ferienwohnung nicht erlaubt.

Raumaufteilung

  • Schlafzimmer, 2 Personen
    • Kleiderschrank
    • Doppelbett
  • Wohnzimmer, 1 Person
    • Kleiderschrank
    • Einzelbett

Unsere Gästebewertungen Externe Bewertungen

Keine eigene Gästebewertungen
4,4
17 externe Bewertungen
3,8
September 2025
Allgemein:
Alleinreisend
4,3
Juli 2025
Allgemein:
Paar
4,8
Juni 2025
Allgemein:
Balkon, Lage
5,0
Mai 2025
Allgemein:
Paar
4,0
April 2025
Allgemein:
Paar
4,8
November 2024
Allgemein:
Paar
4,5
Oktober 2024
Allgemein:
Alleinreisend
4,5
August 2024
Allgemein:
Paar
4,5
Juni 2024
Allgemein:
Paar
5,0
April 2024
Allgemein:
Immer alles sehr sauber und ordentlich beim Einzug.
4,5
März 2024
Allgemein:
Paar
4,5
März 2024
4,5
Oktober 2023
Allgemein:
Paar
4,0
August 2023
Allgemein:
Paar
4,8
Juli 2023
Allgemein:
4
4,0
Juli 2023
Allgemein:
Paar
3,8
März 2023
Allgemein:
Alleinreisend

Gesamte Ausstattung

  • Bad

    • Haartrockner
    • Wäschetrockner
  • Basic

    • Kinder willkommen
    • Nichtraucher
    • Quadratmeter
      44 m²
    • Zimmer
      2
  • Entfernung

    • Strandentfernung
      85 m
  • Küche

    • Gefrierfach
    • Küche
    • Microwelle
  • Unterkunft

    • Aufzug
    • Babybett
      1
    • Betten
      4
    • Doppelbetten
      1
    • Einzelbetten
      1
    • Geschlossene Terrasse
    • Internet
    • Kleiderschrank
    • Rauchmelder
    • Safe
    • TV
    • Waschmaschine
    • WLAN

Kurzurlaub

Es besteht eine begrenzte Möglichkeit das ganze Jahr einen Kurzurlaub zu machen, typischerweise ausserhalb der Hochsaison.

Prices and calendar

Kalender

Ankunft
Vorheriger Monat Nächster Monat
  • September 2026
    MoDiMiDoFrSaSo
    36123456
    3778910111213
    3814151617181920
    3921222324252627
    40282930
    41
  • Oktober 2026
    MoDiMiDoFrSaSo
    401234
    41567891011
    4212131415161718
    4319202122232425
    44262728293031
    45
   Verfügbarkeit am ausgewählten Datum prüfen
Frei
Nicht frei
   Ankunft möglich
Dauer
Personen

Preis

Zeitraum
Ankunft
Abreise
Dauer
1 Woche
Personen
Keine Personen ausgewählt

Bitte beachten

Ankunftszeit wurde nicht ausgewählt.
Es wurden keine Personen ausgewählt.
Vertrags- und Mietbedingungen