Hundefreundliche Ferienwohnung mit Terrasse

Brauereistraße - 26736 - Grimersum

Objekt Nr.: 552-175547
Hundefreundliche Ferienwohnung im Obergeschoss des Burghauses in Grimersum mit moderner Ausstattung und Terrasse.
  • Schlafzimmer 1
  • Badezimmer 1
  • Wohnfläche 65 m²
  • Haustiere 1
  • Kurzurlaub möglich Ja
  • Internet Ja
  • Geschirrspüler Ja
  • Nichtraucher Ja

Beschreibung

Hundefreundliche Ferienwohnung (50qm) für 5 Personen in ländlicher Lage!

Die Wohnung 4 befindet sich mit ca. 50qm im Obergeschoss und bietet Platz für 2-3 Personen.

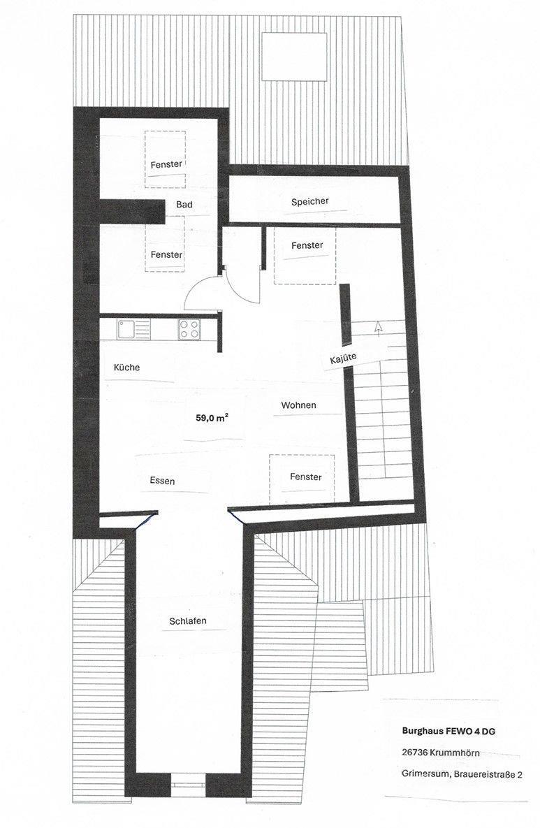
Wir begrüßen Sie im "Burghaus" in Grimersum, ehemaliger Burgbrauerei und später in der Krummhörn als Burggrill bekannt. In den vergangenen Jahren wurde das gesamte Objekt aufwändig saniert und liebevoll in 5 unterschiedliche Ferienwohnungen umgebaut. Die Wohnung 4 befindet sich mit ca. 60 m² im Obergeschoss mit separatem Eingang und bietet Platz für bis zu 5 Personen. Es gibt einen großen Raum mit 4 m Höhe wo das offene Wohn.-Esszimmer mit Küche gelegen ist. Räumlich abgetrennt ist die Schlafecke mit bis zu 1,70 m Deckenhöhe (also die meisten Mensch müssen sich hier bücken) mit zwei Betten von jeweils 1,20 breite stehen. Im Wohn- und Essbereich ist eine vollwertig ausgestattete moderne Küche mit Essplatz, sowie ein Schlafsofa mit Fernseher vorhanden. Über eine Leiter kann die Kajüte zum Schlafen für 1 Person (Kinder) genutzt werden. Die Schlafgegebenheiten sind außergewöhnlich und damit garantiert schon eine Erfahrung wert. Selbstverständlich ist auch noch ein fahrbares Kinderbett vorhanden. Das moderne Bad ist ausgestattet mit einer geräumigen Duschwanne. Waschbecken und Toilette sind in dem Raum separat über eine Stufe zu erreichen. Belichtung und Belüftung über ein 2. Velux Fenster. Die Waschmaschine befindet sich im Erdgeschoss. Bügeleisen und Wäschespinne sind auch beinhaltet. Alle Fenster sind mit Fliegengittern versehen. Vor dem Haus befindet sich eine Terrasse mit Sitzmöglichkeiten und Sonnenschirm. Grill und Fahrradgarage stehen zur Verfügung. PKW-Stellplätze befindet sich vor dem Haus. Hunde sind herzlich willkommen! Babybett und Kinderhochstuhl kann kostenlos zur Verfügung gestellt werden. Kostenfreies W-Lan ist verfügbar! (Für uneingeschränkte Verfügbarkeit und ausreichende Geschwindigkeit übernehmen wir keine Gewähr.) Diese Wohnung ist bereits ab zwei Nächten buchbar, in Saison A auch ab einer Nacht! Die Ferienwohnung befindet sich in Grimersum, einem idyllischen kleinen Warfendorf in der Gemeinde Krummhörn, nahe der ostfriesischen Nordseeküste. Umgeben von weitläufigen Wiesen, kleinen Kanälen und typischer Marschlandschaft, bietet Grimersum eine ruhige und erholsame Atmosphäre – ideal für Naturliebhaber und Ruhesuchende. Trotz der ländlichen Lage sind bekannte Küstenorte wie Greetsiel, Emden und Norddeich schnell erreichbar. Das malerische Fischerdorf Greetsiel liegt nur wenige Autominuten entfernt und lädt mit seinem historischen Hafen, kleinen Cafés und maritimen Flair zum Verweilen ein. Auch die ostfriesischen Inseln sind von Norddeich aus bequem per Fähre zu erreichen. Direkt vor der Tür bietet sich die Möglichkeit zu ausgedehnten Spaziergängen oder Fahrradtouren entlang der typisch ostfriesischen Landschaft. Der nahegelegene Naturpark Wattenmeer, ein UNESCO-Weltnaturerbe, ist ein Paradies für Vogelliebhaber und Erholungssuchende. Die Ferienwohnung ist somit ein idealer Ausgangspunkt für einen entspannten Nordseeurlaub mit einer perfekten Mischung aus Natur, Erholung und Küstenerlebnis.

Unsere Gästebewertungen Externe Bewertungen

Keine eigene Gästebewertungen
4,9
28 externe Bewertungen
5,0
Dezember 2025
5,0
September 2025
Allgemein:
Wir sind äußerst zufrieden! Es hat alles gut geklappt, trotz der spontanen Buchung von uns. Vielen Dank
4,3
September 2025
5,0
August 2025
4,8
August 2025
5,0
Juli 2025
5,0
Juli 2025
5,0
Juni 2025
5,0
Juni 2025
5,0
Mai 2025
Allgemein:
Es war ein wirklich schöner Aufenthalt. Die Wohnung zeigte sich genau wie auf den Fotos. Nett, klein, gemütlich. Ich war überrascht wie gut die Küche ausgestattet ist. Das habe ich bislang in noch keiner Ferienwohnung gehabt. Pfannen, Töpfe, Schüssel, Dosen in jeglicher Größe. Selbst ein Pürierstab und Handrührgerät waren vorhanden. Waschmaschine inkl Waschmittel standen ebenso zur Verfügung. Ebenso positiv: es war unfassbar sauber. Wirklich gut!
5,0
April 2025
5,0
März 2025
4,5
März 2025
4,8
Dezember 2024
5,0
September 2024
5,0
August 2024
4,8
August 2024
5,0
August 2024
Allgemein:
Sehr schöne Unterkunft nur zu empfehlen
4,8
Juli 2024
5,0
Mai 2024
5,0
September 2023
5,0
Juli 2023
Allgemein:
Eine super schöne, moderne und saubere Wohnung! Sehr nette Vermieter und eine freundliche und kinderliebe Begrüßung vor Ort! Wir kommen sehr gerne wieder!
5,0
Juli 2023
Allgemein:
Die Mitarbeiter waren sehr freundlich und stets bemüht. Selbst vor Ort wurden sofort Lösungen gefunden. Das Burghaus war sauber, liebevoll eingerichtet und top ausgestattet. Vorschläge zur Verbesserung eigentlich keine, dennoch sollten Netze vor die Fenster ( Mücken) und in dem Zimmer mit den Betten sollte man das Fenster öffnen können. Das ist aber meckern auf hohem Niveau. Sonst alles top 5 Sterne
4,8
Juni 2023
Allgemein:
Alles gut. Bleibt so wie ihr seid. Kommen gern wieder.
4,8
Mai 2023
5,0
Mai 2023
Allgemein:
Es war sehr schön. Mit allen hat uns gut gefallen.
5,0
April 2023
Allgemein:
Es war ein rundum schöner Aufenthalt, es hat an nichts gefehlt. Ausstattung hochwertig und sauber. Einfach super! Wir kommen wieder!
5,0
April 2023
Allgemein:
Sehr nette Gastgeber und sehr nettes Team. Alle sind sehr kinderlieb und hilfsbereit. Alles neu und mit Liebe zum Detail eingerichtet. Liegt super zentral, um alle Sehenswürdigkeiten schnell erreichen zu können. Schön ruhig. Wir haben uns rundum wohlgefühlt. Danke

Ausstattung

  • Bad

    • Anzahl der Duschen
      1
    • Badezimmerfenster
    • Dusche
    • Haartrockner
    • Waschbecken
    • WC
  • Basic

    • Anzahl der Stockwerke
      1
    • Kinder willkommen
    • Nichtraucher
    • Quadratmeter
      65 m²
    • Zimmer
      1
  • Draußen

    • Anzahl der Parkplätze
      1
    • Barbeque
    • Gartenmöbel
    • Gartenschuppen
    • Privater P-Platz
    • Sonnenschirm
    • Terrasse
  • Küche

    • Backofen
    • Gefrierfach
    • Kaffeemaschine
    • Kochutensilien
    • Küche
    • Kühlschrank
    • Microwelle
    • Spülmaschine
    • Teller
    • Toaster
    • Wasserkocher
  • Unterkunft

    • Anzahl der Fernseher
      1
    • Babybett
      1
    • Betten
      3
    • Bügeleisen
    • Einzelbetten
      2
    • Esstisch
    • Fliegengitter
    • Heizung
    • Herd
    • Hochstuhl
      1
    • Internet
    • Jalousie
    • Kleiderschrank
    • Mülleimer
    • Möglichkeit zur Raumverdunkelung
    • Rauchmelder
    • Schlafsofas für eine Person
      1
    • Sitzgelegenheiten im Esszimmer
    • Sofa
    • Spiegel
    • TV
    • Warmes Wasser
    • Waschmaschine
    • WLAN
    • Wäscheständer

Kurzurlaub

Sie haben die nächsten 4 Wochen eine begrenzte Möglichkeit einen Kurzurlaub zu machen.

Prices and calendar

Kalender

Ankunft
Nächster Monat
  • Dezember 2025
    MoDiMiDoFrSaSo
    491234567
    50891011121314
    5115161718192021
    5222232425262728
    1293031
    2
  • Januar 2026
    MoDiMiDoFrSaSo
    11234
    2567891011
    312131415161718
    419202122232425
    5262728293031
    6
   Verfügbarkeit am ausgewählten Datum prüfen
Frei
Nicht frei
   Ankunft möglich
Dauer
Personen

Preis

Zeitraum
Ankunft
Abreise
Dauer
1 Woche
Personen
Keine Personen ausgewählt

Bitte beachten

Ankunftszeit wurde nicht ausgewählt.
Es wurden keine Personen ausgewählt.
Vertrags- und Mietbedingungen