Ferienwohnung mit traumhaftem Seeblick auf Borkum

Bismarckstr. - 26757 - Borkum

Objekt Nr.: 552-71093
Bild 3
7 Übernachtungen
Ab EUR 864,-
4 Erwachsene 0 Kinder
Genießen Sie traumhaften Seeblick von dieser gemütlichen Ferienwohnung direkt an der Borkumer Promenade.
  • Schlafzimmer 1
  • Badezimmer 1
  • Wohnfläche 40 m²
  • Haustiere Nicht erlaubt
  • Kurzurlaub möglich Ja
  • Entfernung Wasser 80 m
  • Internet Ja
  • Wasserblick Ja
  • Geschirrspüler Ja
  • Nichtraucher Ja

Beschreibung

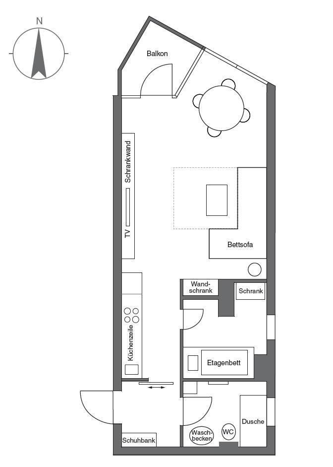
Traumhafte Aussichten auf Borkum! Willkommen in unserer Ferienwohnung „Seeblick“ – der perfekte Ort für Entspannung und unvergessliche Urlaubsmomente! Hier im 6. Stock (natürlich mit Fahrstuhl zu erreichen) in der ersten Reihe zur Promenade, genießen Sie einen traumhaften Panoramablick auf die Nordsee – von Westen bis Nord-Osten, auf die Seehundbank und den Neuen Leuchtturm. Unsere gemütliche Wohnung bietet Platz für zwei Erwachsene und zwei Kinder (+ ein Baby). Sie ist mit einem offenen Wohn- und Schlafraum, einer modernen Küchenzeile, einem separaten Kinderschlafzimmer, einem geräumigen Flur, einem stilvollen Duschbad und einem überdachten Balkon ausgestattet. Der Wohn- und Schlafraum lädt mit einer großen Sofaecke zum Entspannen ein. Mit nur einem Handgriff wird das Sofa zu einem gemütlichen Doppelbett (165 x 200 cm) mit separater Matratze. Für entspannte Stunden sorgen außerdem ein Flachbild-TV, Gesellschaftsspiele, Bücher und ein Radio. In der modernen Küchenzeile finden Sie alles, was Sie für die Selbstverpflegung brauchen: einen 4-Platten-Ceranherd, einen Backofen, einen Kühlschrank mit Gefrierfach, eine Mikrowelle, einen Geschirrspüler und für Kaffeeliebhaber eine Senseo-Maschine und eine French-Press. Natürlich gibt es auch einen Wasserkocher. Das separate Schlafzimmer ist mit einem Etagenbett (80 x 180 cm) ausgestattet, das ideal für Kinder ist. Ein Babybett und ein Hochstuhl sind im Aufklappteil des Sofas versteckt und lassen sich mit wenigen Handgriffen aufbauen. Vom Balkon aus haben Sie einen traumhaften Blick auf die Nordsee und den Sonnenuntergang – hier lässt sich der Abend perfekt mit einem Gläschen Wein ausklingen. Im Flur gibt es ausreichend Platz für Ihre Sachen – inklusive Garderobe, Spiegel und Schuhbank. Ein kleiner Vorflur wird nur mit der Nachbarwohnung geteilt. Noch einige praktische Informationen: Freies WLAN steht Ihnen selbstverständlich zur Verfügung. Waschmaschine und Trockner stehen im Haus bereit (gemeinschaftlich), im Kinderzimmer finden Sie einen Wäscheständer und es gibt einen Fahrradstellplatz. Bitte haben Sie dafür Verständnis, dass in der Wohnung nicht geraucht werden darf. Wir freuen uns darauf, Sie auf Borkum begrüßen zu dürfen und wünschen Ihnen eine erholsame Zeit im "Ferienhaus Seeblick"!

Raumaufteilung

  • Schlafzimmer, 2 Personen
    • Kleiderschrank
    • Etagenbett
  • Wohnzimmer, 2 Personen
    • Kleiderschrank
    • Kleines Doppelbett

Unsere Gästebewertungen Externe Bewertungen

Keine eigene Gästebewertungen
4,6
39 externe Bewertungen
4,6
April 2026
Allgemein:
Obwohl es ein Haus mit sehr vielen Ferienwohnungen ist, war es im Haus selber super ruhig. Abends hört man die Musik von der Strandpromenade, was vielleicht den ein oder anderen stören könnte, der Ruhe sucht. Ich finde, es gehört zum Urlaubsflair dazu. Leider konnte ich den Balkon nicht viel nutzen, da es meist sehr windig war, aber die Aussicht ist super. Und wer wie ich auf "Workation" ist, kann mit Blick auf's Meer am Laptop arbeiten. Kleiner Supermarkt und Resturants direkt vor der Tür, und den Schlüssel holt man direkt am Bahnhof ab und geht 5 Minuten zur Unterkunft. Alles in allem eine schöne helle und modern eingerichtete Wohnung. Super Küche, alles vorhanden was man braucht.
4,2
April 2026
4,0
Dezember 2025
Allgemein:
Eine tolle Wohnung es gibt nichts zu meckern
5,0
Oktober 2025
4,4
August 2025
5,0
April 2025
Allgemein:
Die Wohnung ist einfach nur klasse. Es ist alles vorhanden, was man benötigt. Wir waren schon öfters da und es war jedes mal sehr sauber. Die Lage ist unschlagbar, die Aussicht beeindruckend.
4,0
März 2025
4,5
September 2024
Allgemein:
Wer die Nähe zum Strand sucht und auf eine freundliche, gute Betreuung Wert legt, ist hier gut aufgehoben.
4,3
August 2024
Allgemein:
Viel frische Luft Super Klima
4,3
Juli 2024
4,7
Juli 2024
Allgemein:
.
4,5
Juni 2024
4,8
Mai 2024
4,4
März 2024
Allgemein:
.
4,8
Februar 2024
5,0
November 2023
3,8
September 2023
Allgemein:
Schöne Wohnung, toller Ausblick, alles in der Nähe.
4,8
September 2023
Allgemein:
Saubere, moderne Ferienwohnung. Kleiner Balkon mit Meerblick. Nah an der Promenade.
5,0
September 2023
4,8
Juni 2023
Allgemein:
Die Wohnung hat uns sehr gefallen. Wir würden gerne noch einmal unseren Urlaub hier verbringen.
4,8
Mai 2023
Allgemein:
Klasse Wohnung in unschlagbarer Lage. Sehr sauber und gepflegt. Alles vorhanden, was man benötigt. Wir fühlten uns sehr wohl und kommen gerne wieder.
4,8
April 2023
4,8
Januar 2023
5,0
September 2022
Allgemein:
Sehr schöne Wohnung. Ein traumhafter Ausblick in verschiedene Richtungen. Sehr empfehlenswert.
5,0
August 2022
5,0
Juli 2022
3,8
Juni 2022
Allgemein:
Schöner Ausblick in zentraler Lage, guter Zustand.
5,0
Mai 2022
4,6
April 2022
4,8
Dezember 2021
4,5
Dezember 2021
Allgemein:
Tolle, gemütliche, modern eingerichtete Ferienwohnung mit tollem Ausblick auf die Nordsee und den Leuchtturm. Immer wieder gerne!
5,0
August 2021
Allgemein:
Super schöne, kleine, gemütliche Wohnung mit allem was man braucht! Die Wohnung liegt direkt am Meer und der Ausblick vom Balkon auf den Leuchtturm und aufs Meer ist einzigartig! Jederzeit wieder
4,8
August 2021
Allgemein:
Die Wohnung ist sehr schön eingerichtet. Es ist alles vorhanden, was man braucht. Der Blick aufs Meer und den Leuchtturm sind fantastisch, Komme gerne mal wieder!
4,4
August 2021
Allgemein:
Sehr schön gelegen Wohnung mit schönen Blick auf den Nordstrand- man hört morgens als erstes das Meer rauschen! Traumhaft.
4,4
Juni 2021
4,8
August 2020
4,0
Juni 2020
Allgemein:
Schönes Appartement in super Lage mit tollem Ausblick! Gut ausgestattet und trotz des großen Gebäudes sehr leise!
4,8
Oktober 2019
4,6
September 2019

Gesamte Ausstattung

  • Bad

    • Anzahl der Duschen
      1
    • Badezimmerfenster
    • Dusche
    • Haartrockner
    • Waschbecken
    • WC
    • Wäschetrockner
  • Basic

    • Kinder willkommen
    • Nichtraucher
    • Quadratmeter
      40 m²
    • Zimmer
      2
  • Entfernung

    • MeerEntfernung
      80 m
    • Strandentfernung
      60 m
  • Küche

    • Backofen
    • Kaffeemaschine
    • Küche
    • Kühlschrank
    • Microwelle
    • Spülmaschine
    • Toaster
    • Wasserkocher
  • Unterkunft

    • Aufzug
    • Babybett
      1
    • Balkon
    • Betten
      4
    • Bücher
    • DVD
    • Erstausstattung
    • Esstisch
    • Etagenbett
      1
    • Familie
    • Ganzkörperspiegel
    • Heizung
    • Herd
    • Hochstuhl
      1
    • Internet
    • Kleiderschrank
    • Lounge-Sitzgelegenheiten
    • Radio
    • Seeblick
    • Sitzgelegenheiten im Esszimmer
    • Sofa
    • Spiegel
    • Spiele
    • Staubsauger
    • TV
    • Warmes Wasser
    • Waschmaschine
    • WLAN
    • Wohnzimmer
    • Wäscheständer
    • Überdachte Terrasse

Kurzurlaub

Es besteht eine begrenzte Möglichkeit das ganze Jahr einen Kurzurlaub zu machen, typischerweise ausserhalb der Hochsaison.

Prices and calendar

Kalender

Ankunft
Vorheriger Monat Nächster Monat
  • Juli 2026
    MoDiMiDoFrSaSo
    2712345
    286789101112
    2913141516171819
    3020212223242526
    312728293031
    32
  • August 2026
    MoDiMiDoFrSaSo
    3112
    323456789
    3310111213141516
    3417181920212223
    3524252627282930
    3631
   Verfügbarkeit am ausgewählten Datum prüfen
Frei
Nicht frei
   Ankunft möglich
Dauer
Personen

Preis

Zeitraum
Ankunft
Abreise
Dauer
1 Woche
Personen
Keine Personen ausgewählt

Bitte beachten

Ankunftszeit wurde nicht ausgewählt.
Es wurden keine Personen ausgewählt.
Vertrags- und Mietbedingungen