Gemütliche Ferienwohnung im historischen Gulfhof

- 26553 - Dornum

Objekt Nr.: 354-DE-26553-68
Charmante Ferienwohnung Nordnest mit 98 m² in historischem Gulfhof, idyllisch im Vogelschutzgebiet nahe der Nordseeküste.
  • Schlafzimmer 2
  • Badezimmer 1
  • Wohnfläche 98 m²
  • Haustiere Nicht erlaubt
  • Kurzurlaub möglich Ja
  • Einkaufen 5 km
  • Barrierefrei Ja
  • Waschmaschine Ja
  • Trockner Ja
  • Geschirrspüler Ja

Beschreibung

Ferienwohnung Nordnest

Haus:
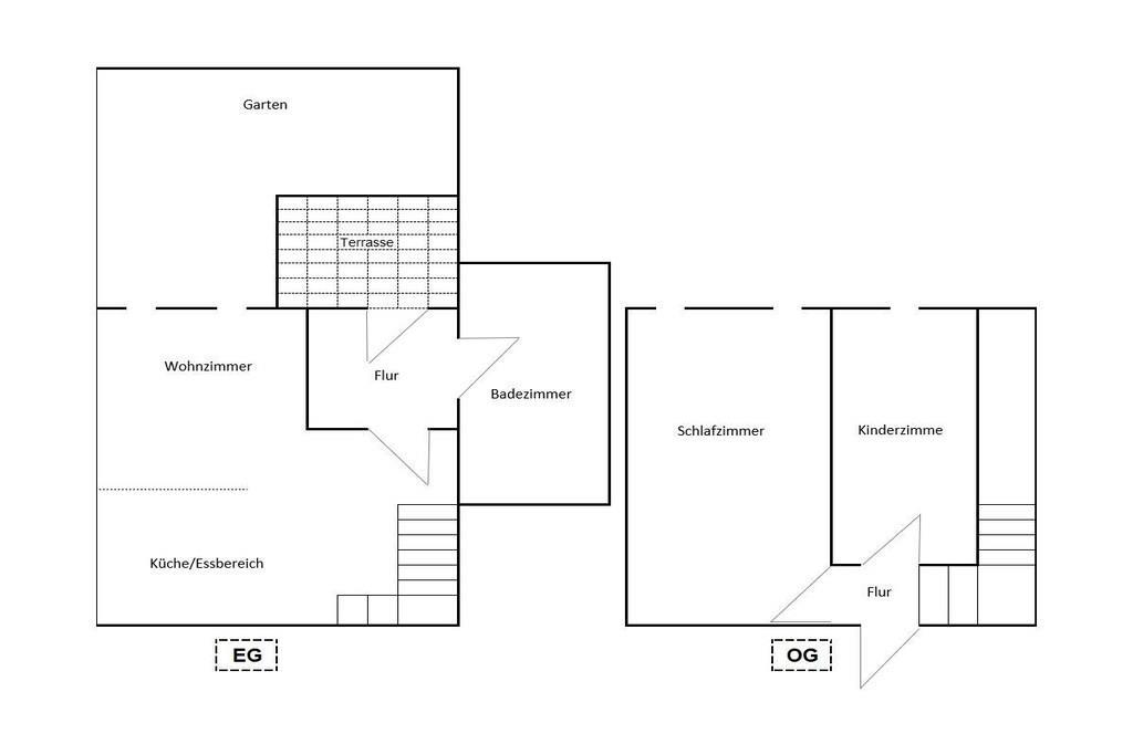
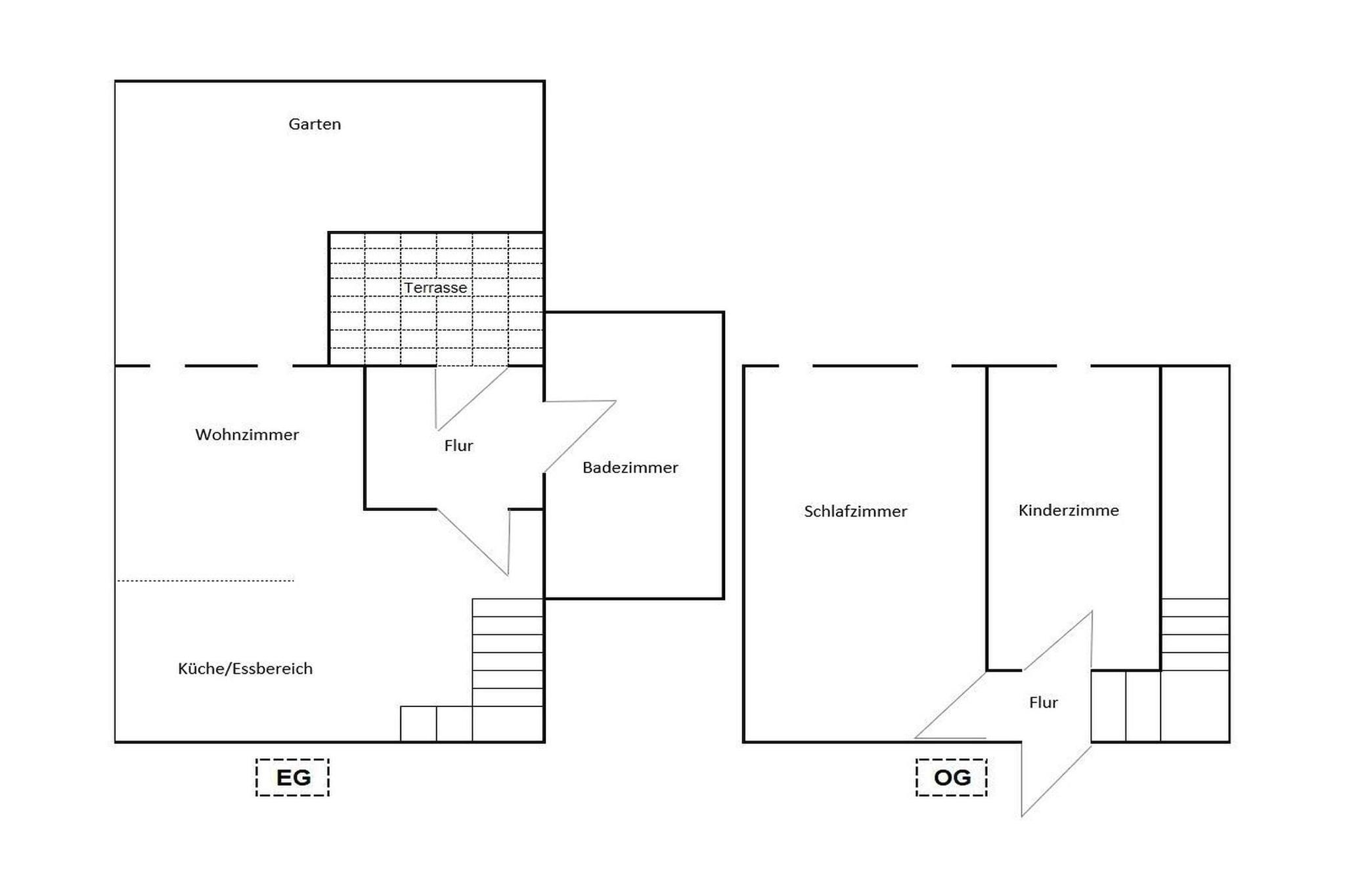
Unsere schöne ca. 98 qm große Nichtraucherwohnung auf 2 Etagen befindet sich auf dem 1862 errichteten und im Jahr 2005 liebevoll renoviert denkmalgeschützten Gulfhof Siebelshörn. Durch die Sanierung entstanden hier 12 Wohneinheiten, die teilweise privat oder als Ferienwohnungen genutzt werden. Das Anwesen liegt inmitten eines Vogelschutzgebietes. Umgeben von Feldern, Gärten mit altem Baumbestand im Ortsteil Dornum Nesse, nahe der ostfriesischen Nordseeküste im Deichhinterland. Die Wohnung teilt sich im EG auf in Wohnzimmer, Küche mit Essbereich und 1 großen Bad mit Toilette, Badewanne und Dusche. Über eine Holztreppe gelangt man in die 2 im DG gelegenen Schlafzimmer (1x Doppelbetten, 1x zwei Einzelbetten).

Unsere Gästebewertungen Externe Bewertungen

Keine eigene Gästebewertungen
4,3
11 externe Bewertungen
4,5
Februar 2025
Allgemein:
Vår vistelse på Semesterlägenhet Nordnest var inget mindre än förtjusande! Den rymliga två-rums layouten var perfekt för vår familj på fyra, och den mysiga eldstaden gav en varm känsla under kalla kvällar, Trädgården var en hit med barnen – de älskade att springa runt i det inhägnade området medan vi njöt av en grillfest, Vi uppskattade också det välutrustade köket som gjorde matlagningen till en breeze, Dessutom var de närliggande stränderna bara en kort bilresa bort, vilket gjorde det lätt för oss att njuta av lite sol och kul
4,5
Dezember 2024
Allgemein:
Et dejligt ophold alt i alt! Lejligheden var ren og komfortabel, med en hyggelig pejs, der gjorde vores aftener specielle, Vi nød at udforske det lokale område, især Nationalpark Niedersächisches Wattenmeer, som kun var en kort køretur væk
4,0
Dezember 2024
Allgemein:
Vi tilbrakte en uke her og elsket det! Området er rolig, og leiligheten er godt vedlikeholdt, Barna likte stranden ved Dornumersiel, som bare var en kort kjøretur unna, Det var en flott familieferie!
4,0
Oktober 2024
Allgemein:
Tolle Lage in der Nähe des Strandes und der ruhigen Natur, Die Wohnung ist geräumig und sauber, Würde ich auf jeden Fall für Familien empfehlen!
4,5
Oktober 2024
Allgemein:
Super gezellige appartement! Alles was schoon en had al det, vi havde brug for, Elskede pejsen!
4,5
September 2024
Allgemein:
Nordnest is fantastic! The décor was inviting and homely, We appreciated the thoughtful touches, like the cozy blankets by the fireplace, The location is ideal for exploring the surrounding sights, including the Museum Leben am Meer
4,0
September 2024
Allgemein:
Ett mycket familjevänligt ställe, Layoutet av lägenheten var perfekt för oss, Vi hade tillräckligt med utrymme för alla, och barnen älskade att leka i trädgården, De närliggande matställena var fantastiska för de kvällar vi inte ville laga mat
4,5
Mai 2024
Allgemein:
Alt var ret godt! WiFi var lidt langsomt til tider, men ikke et stort problem, Værterne var super venlige og sørgede for, at vi havde alt, hvad vi havde brug for, Køkkenet var veludstyret, og vi fik endda mulighed for at vaske tøj, hvilket var en livredder!
4,0
Mai 2024
Allgemein:
Clean and practical accommodation, The hosts were friendly and made us feel at home, The proximity to local dining options, like Café Dolce Vita, was convenient, Overall, a pleasant stay
4,0
April 2024
Allgemein:
Vi havde en fantastisk tid på Nordnest! Lejligheden var rummelig og perfekt til vores familie på fire, Børnene elskede at lege i den store have, og vi satte pris på det veludstyrede køkken til vores måltider, De nærliggende strande var en bonus for vores sommerferie
4,0
April 2024
Allgemein:
Lägenheten var charmig och hade allt vi behövde, Trädgården erbjöd ett bra utrymme för avkoppling, och vi njöt av att grilla på terrassen, Det närliggande slottet Jever var en underbar dagstur!

Ausstattung

  • Allgemeine Information

    • Wohnraum
      98 m²
  • Baustil

    • Top Lage
  • Behindertengerecht - Entfernungen

    • Freirhöhe unter dem Waschbecken >= 70 cm
  • Entfernung

    • Arzt
      5 km
    • Bahnhof
      14 km
    • Busstopp
      200 m
    • Diverse
      6 km
    • Einkaufen
      5 km
    • Fährhafen
      5 km
    • Restaurants
      5 km
    • Zentrum
      6 km
  • Kinder

    • Hochstuhl
    • Kinderbett
    • Spielzeuge
    • Treppenschutzgitter
  • Küchenartikel

    • Backofen
    • Eierkocher
    • Gefrierfach
    • Grill
    • Kaffeemaschine
    • Kochfeld
    • Kühlschrank
    • Rührgerät
    • Spülmaschine
    • Toaster
    • Wasserkocher
  • Parkeinrichtungen

    • Erste Hilfe
    • Grillzentrum
    • Internet Zugang
  • Raumgegenstände

    • Bettwäsche
    • DVD
    • Esstisch
    • Feueralarm
    • Garderobenständer
    • Geschirrtücher
    • Kleiderschrank
    • Sessel
    • Sofa
    • Spiegel
    • Staubsauger
    • Steckdosenabdeckungen
    • Stereoanlage
    • TV
  • Rund ums Haus

    • Garten
    • Gartenmöbel
    • Terrasse
  • Sanitär / Waschen

    • Badewanne
    • Dusche
    • Heißes Wasser
    • Waschbecken
    • Waschmaschine
    • Wäschetrockner
  • Sicherheit zu Hause

    • Verbandkasten
  • Sonstige

    • Bügelbrett
    • Bügeleisen
    • Heizung
    • Haartrockner
    • Parken (gebührenpflichtig)
    • Trockenschrank
  • Typ

    • Ferienhaus
  • Öffentliche Räume

    • Rasen

Kurzurlaub

Sie haben das ganze Jahr die Möglichkeit einen Kurzurlaub zu machen.

Prices and calendar

Kalender

Ankunft
Nächster Monat
   Verfügbarkeit am ausgewählten Datum prüfen
Frei
Nicht frei
   Ankunft möglich
Dauer

Preis

Zeitraum
Ankunft
Abreise
Dauer
1 Woche
Personen
Bis zu 4 Personen

Bitte beachten

Ankunftszeit wurde nicht ausgewählt.
Vertrags- und Mietbedingungen