Idyllisches Hausboot mit Flussblick in Wilhelmshaven
- Wilhelmshaven - 26386
Objekt Nr.: 305-DE2955.622.1
2 Personen
Entspannen Sie auf dem idyllischen Hausboot KHT 2 Lacet mit Blick auf den Fluss Maade in Wilhelmshaven.
-
Schlafzimmer 1
-
Badezimmer 1
-
Wohnfläche 25 m²
-
Haustiere Nicht erlaubt
-
Kurzurlaub möglich Ja
-
Entfernung Wasser 2 km
-
Kaminofen Ja
-
Nichtraucher Ja
Beschreibung
Das Hausboot KHT 2 Lacet ist ein stationäres, schwimmendes Haus mit Blick auf den Fluss Maade.
Es ist ruhig gelegen auf dem Wasser im idylischen Sielort Rüstersiel als Stadtteil von Wilhelmshaven.
Die bordeigene Terrasse ist mit Gartenmöbeln für 2 Personen ausgestattet. Auf der kleineren hinteren Terrasse ist eine Sitzgelegenheit zum verweilen, angeln o.ä. Das Hausboot liegt in einer privaten Marina des Eigentümers. Das Grundstück ist umzäunt und hat kostenfreie Parkmöglichkeiten.
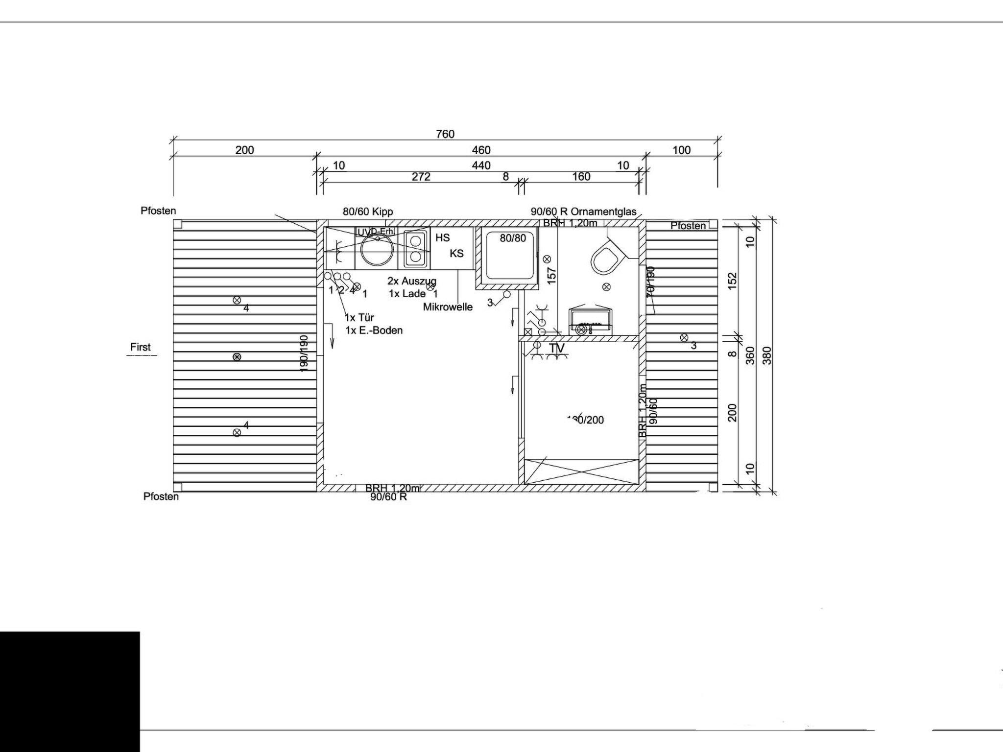
Das Hausboot KHT 2 Lacet ist etwa 25 m² groß und hat folgenden Aufteilung: ein Salon mit Elektrokamin, Couchgarnitur für 2 Personen; Flatscreen-Fernseher und Radio. Die Küchenzeile ist mit Induktionskocher, Mikrowelle, Toaster, Wasserkocher, Kühlschrank, Spüle sowie einer Kaffeemaschine komplett ausgestattet. Das Hausboot hat einen abgeteilten Schlafraum mit Doppelbett; Es ist ein separater Badraum mit mit WC, Waschbecken und Dusche vorhanden. Auf kleinsten Raum finden Sie alles was für einen gemütlichen Aufenthalt benötigt wird.
Das Wasser mit Angelmöglichkeiten befindet sich quasi direkt vor der Haustür. Die Entfernung zum nächsten Sandstrand beträgt ca. 3 Kilometer. Die nächsten Restaurants und ein Bäcker ist nur wenige hundert Meter entfernt. Der nächste Supermarkt mit Tankstelle ist etwa 1,5 Kilometer entfernt.
In der Sommersaison sind auf Anfrage Tretboote, Kanus und Kajaks sowie Fahrräder verfügbar.
Der Zugang zu den Hausbooten führt über einen Weg mit Gefälle und einen kleinen Fingersteg und ist daher leider nicht rollstuhlgerecht.
Basisinformationen
- Anzahl Personen: 2
- Erlaubte Haustiere: keins
- Unterkunftstyp: Ferienhaus
- befindet sich in: Anlage
- Art d. Gebäudes: Bungalow
- Gesamtanzahl d. Stockwerke im Gebäude über EG: 1
- Wohnfläche: 25 m²
- Grundstücksfläche: 20000 m²
- Baujahr: 2020
- freistehend
- Anbieter wohnt auf dem Grundstück
- Nichtraucherunterkunft
- Badezimmeranzahl: 1
Top Merkmale
- Heizung: überall
- Terrasse
- Private PKW-Stellplätze insgesamt für diese Unterkunft: mehr als 10
- ? davon private Außenstellplätze: mehr als 10
Schlafen
Schlafzimmer 1
- Doppelbett (von 1,51 m bis 1,79 m Breite)
Badezimmer
Badezimmer 1
- Dusche
- Waschbecken
- Toilette
Kochen/Wohnen
- Kaffeemaschine: Filter-Kaffeemaschine
- Kühl-/Gefrierschrank: Gefrierfach, Kühlschrank
- Herd: Induktionsherd
- Toaster
- Mikrowelle
- Wasserkocher
- Kamin
Entertainment
- Fernseher: TV, Sat.-TV
- Musikanlage
- Radio
- CD-Player
Hauswirtschaft
- Staubsauger
- Ventilator: 1
Umgebung
- Aussicht: Meer/See
- nächstgelegene Ortsmitte: 1,0 km
- Lebensmittelhandel: 1,5 km
- Bars/Clubs/Ausgehen: 5,0 km
- Cafés/Restaurants: 500 m
- Bahnhof: 5,0 km
- Flughafen: 100,0 km
- Autobahn: 2,0 km
- nächste Haltestelle ÖPNV: 500 m
- Strand: 5,0 km
- Sandstrand: 5,0 km
- Meer: 2,0 km
- Boot inklusive: Ruderboot, Tretboot
- Spielplatz: 300 m
- Reitmöglichkeit: 5,0 km
Besonderheiten
- Hausboot
Art d. Gebäudes: Bungalow. Grundstücksfläche: 20000m². Baujahr: 2020. Anbieter wohnt auf dem Grundstück.
Es ist ruhig gelegen auf dem Wasser im idylischen Sielort Rüstersiel als Stadtteil von Wilhelmshaven.
Die bordeigene Terrasse ist mit Gartenmöbeln für 2 Personen ausgestattet. Auf der kleineren hinteren Terrasse ist eine Sitzgelegenheit zum verweilen, angeln o.ä. Das Hausboot liegt in einer privaten Marina des Eigentümers. Das Grundstück ist umzäunt und hat kostenfreie Parkmöglichkeiten.
Das Hausboot KHT 2 Lacet ist etwa 25 m² groß und hat folgenden Aufteilung: ein Salon mit Elektrokamin, Couchgarnitur für 2 Personen; Flatscreen-Fernseher und Radio. Die Küchenzeile ist mit Induktionskocher, Mikrowelle, Toaster, Wasserkocher, Kühlschrank, Spüle sowie einer Kaffeemaschine komplett ausgestattet. Das Hausboot hat einen abgeteilten Schlafraum mit Doppelbett; Es ist ein separater Badraum mit mit WC, Waschbecken und Dusche vorhanden. Auf kleinsten Raum finden Sie alles was für einen gemütlichen Aufenthalt benötigt wird.
Das Wasser mit Angelmöglichkeiten befindet sich quasi direkt vor der Haustür. Die Entfernung zum nächsten Sandstrand beträgt ca. 3 Kilometer. Die nächsten Restaurants und ein Bäcker ist nur wenige hundert Meter entfernt. Der nächste Supermarkt mit Tankstelle ist etwa 1,5 Kilometer entfernt.
In der Sommersaison sind auf Anfrage Tretboote, Kanus und Kajaks sowie Fahrräder verfügbar.
Der Zugang zu den Hausbooten führt über einen Weg mit Gefälle und einen kleinen Fingersteg und ist daher leider nicht rollstuhlgerecht.
Basisinformationen
- Anzahl Personen: 2
- Erlaubte Haustiere: keins
- Unterkunftstyp: Ferienhaus
- befindet sich in: Anlage
- Art d. Gebäudes: Bungalow
- Gesamtanzahl d. Stockwerke im Gebäude über EG: 1
- Wohnfläche: 25 m²
- Grundstücksfläche: 20000 m²
- Baujahr: 2020
- freistehend
- Anbieter wohnt auf dem Grundstück
- Nichtraucherunterkunft
- Badezimmeranzahl: 1
Top Merkmale
- Heizung: überall
- Terrasse
- Private PKW-Stellplätze insgesamt für diese Unterkunft: mehr als 10
- ? davon private Außenstellplätze: mehr als 10
Schlafen
Schlafzimmer 1
- Doppelbett (von 1,51 m bis 1,79 m Breite)
Badezimmer
Badezimmer 1
- Dusche
- Waschbecken
- Toilette
Kochen/Wohnen
- Kaffeemaschine: Filter-Kaffeemaschine
- Kühl-/Gefrierschrank: Gefrierfach, Kühlschrank
- Herd: Induktionsherd
- Toaster
- Mikrowelle
- Wasserkocher
- Kamin
Entertainment
- Fernseher: TV, Sat.-TV
- Musikanlage
- Radio
- CD-Player
Hauswirtschaft
- Staubsauger
- Ventilator: 1
Umgebung
- Aussicht: Meer/See
- nächstgelegene Ortsmitte: 1,0 km
- Lebensmittelhandel: 1,5 km
- Bars/Clubs/Ausgehen: 5,0 km
- Cafés/Restaurants: 500 m
- Bahnhof: 5,0 km
- Flughafen: 100,0 km
- Autobahn: 2,0 km
- nächste Haltestelle ÖPNV: 500 m
- Strand: 5,0 km
- Sandstrand: 5,0 km
- Meer: 2,0 km
- Boot inklusive: Ruderboot, Tretboot
- Spielplatz: 300 m
- Reitmöglichkeit: 5,0 km
Besonderheiten
- Hausboot
Art d. Gebäudes: Bungalow. Grundstücksfläche: 20000m². Baujahr: 2020. Anbieter wohnt auf dem Grundstück.
Unsere Gästebewertungen Externe Bewertungen
Gesamte Ausstattung
-
Entfernung
-
Flughafen BRE101,3 km
-
Flughafen HAM228,1 km
-
Meer2 km
-
Zentrum1 km
-
Öffentlicher Verkehr500 m
-
-
Hausinfo
-
Anzahl Badezimmer1
-
Anzahl der Zimmer2
-
Anzahl Schlafzimmer1
-
Bettwäsche kostenlos
-
Dusche
-
Freistehend
-
Gefrierfach
-
Handtücher kostenlos
-
Heizung
-
Kamin
-
Keine Haustiere erlaubt
-
Kühlschrank
-
Microwelle
-
Nichtraucher
-
Parkplatz bedeckt
-
Reiten
-
Spielplatz
-
Terrasse
-
TV
-
TV international
-
Wohnfläche in m²25 m²
-
-
Thema
-
Sonnenstrand
-
Kurzurlaub
Es besteht eine begrenzte Möglichkeit das ganze Jahr einen Kurzurlaub zu machen, typischerweise ausserhalb der Hochsaison.
Prices and calendar
Kalender
Dauer
Preis
Zeitraum
- Ankunft
- Abreise
- Dauer
- 1 Woche
Personen
Bis zu 2 Personen
Bitte beachten
Ankunftszeit wurde nicht ausgewählt.