Gemütliches Appartement mit Sauna und Dachterrasse

Frahmsort - 25826 - St. Peter-Ording

Objekt Nr.: 552-96924
Gemütliches Appartement "Ausguck" mit Dachterrasse und Sauna in St. Peter-Ording.
  • Schlafzimmer 1
  • Badezimmer 1
  • Wohnfläche 35 m²
  • Haustiere 1
  • Kurzurlaub möglich Ja
  • Sauna Ja
  • Internet Ja
  • Geschirrspüler Ja
  • Nichtraucher Ja

Beschreibung

Ausguck - Appartement in toller Lage mit Dachterrasse

Hier finden Sie Ihr Kuschelnest in St. Peter Ording! Im "Frahmshus" bewohnen Sie das gemütliche Appartement "Ausguck ". Wir freuen uns auf Sie! Es bietet Platz für 1-2 Personen im OG. In dem wunderschönen Appartement ist max. ein Haustier zugelassen.

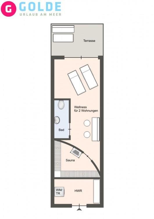
Das Appartement "Ausguck" verfügt über insgesamt ca. 35 m² Wohnfläche. Über einen eigenen separaten Eingang gelangt man in den Flur zum Treppenaufgang in das Appartement "Ausguck". Eine großzügige Küche mit gemütlicher Sitzecke laden zum gemütlichen Frühstück oder zum gemeinsamen Kochen ein. Der kombinierte Wohn- und Schlafraum lässt keine Wünsche offen. Hier ist eine gemütliches Sofa mit Longesessel, TV und ein Bett mit Kleiderschrank. Ihren wunderschönen und großzügigen Balkon, in perfekter Sonnenauslastung, erreichen Sie direkt vom Wohnzimmer. Gartenmöbel laden Sie zur Erholung ein. In einem separaten wunderschönen Anbau lädt der große Wellnessraum mit Sauna, Ruhezone, Dusche, WC und eingezäunter Terrasse zur Erholung ein. Traumhaft schön und einzigartig in SPO! (Nutzbar von 2 Appartements im Haus gegen Gebühr) Carpe Diem! Ein Parkplatz befindet sich direkt auf dem Grundstück. Mit viel Liebe zum Detail wurde großen Wert auf die Inneneinrichtung gelegt. In dem wunderschönen Appartement ist max. ein Haustier zugelassen.

Raumaufteilung

  • Schlafzimmer, 2 Personen
    • Verdunklungsvorhänge, Kleiderschrank
    • Doppelbett (Offenes Fußteil)

Unsere Gästebewertungen Externe Bewertungen

Keine eigene Gästebewertungen
4,6
18 externe Bewertungen
4,0
Mai 2026
4,7
April 2026
4,6
März 2026
4,7
März 2026
4,9
März 2026
Allgemein:
Sehr schöne kleine Wohnung mit toller großer Terrasse und Saunanutzung! Der Dünenwald liegt um die Ecke und das Meer ist fussläufig zu erreichen.
5,0
Januar 2026
4,4
September 2025
4,0
Juli 2025
5,0
Juni 2025
Allgemein:
Es ist mir immer wieder eine Freude über Golde SPO zu buchen. Alles passt und ich wurde noch nie enttäuscht.
4,8
März 2025
4,0
September 2024
4,3
September 2024
4,5
September 2024
4,4
September 2024
5,0
August 2024
Allgemein:
Wir haben uns rundum wohlgefühlt und sind gerne immer wieder Gäste im Ausguck. Klare Weiterempfehlung!
4,2
August 2024
4,8
August 2024
5,0
August 2024

Gesamte Ausstattung

  • Bad

    • Anzahl der Duschen
      1
    • Dusche
    • Haartrockner
    • WC
    • Wäschetrockner
  • Basic

    • Anzahl der Stockwerke
      1
    • Kinder willkommen
    • Nichtraucher
    • Quadratmeter
      35 m²
    • Zimmer
      1
  • Draußen

    • Anzahl der Parkplätze
      1
    • Gartenmöbel
    • Gartenschuppen
    • Privater P-Platz
  • Küche

    • Backofen
    • Gefrierfach
    • Kaffeemaschine
    • Kochutensilien
    • Küche
    • Kühlschrank
    • Spülmaschine
    • Teller
    • Toaster
    • Wasserkocher
  • Unterkunft

    • Anzahl der Fernseher
      1
    • Aufzug
    • Balkon
    • Betten
      2
    • Bügelbrett
    • Bügeleisen
    • Doppelbetten
      1
    • Heizung
    • Herd
    • Internet
    • Kleiderschrank
    • Mülleimer
    • Möglichkeit zur Raumverdunkelung
    • Sauna
    • Spiegel
    • Staubsauger
    • TV
    • Waschmaschine
    • WLAN
    • Wäscheständer

Kurzurlaub

Es besteht eine begrenzte Möglichkeit das ganze Jahr einen Kurzurlaub zu machen, typischerweise ausserhalb der Hochsaison.

Prices and calendar

Kalender

Ankunft
Vorheriger Monat Nächster Monat
  • Juni 2026
    MoDiMiDoFrSaSo
    231234567
    24891011121314
    2515161718192021
    2622232425262728
    272930
    28
  • Juli 2026
    MoDiMiDoFrSaSo
    2712345
    286789101112
    2913141516171819
    3020212223242526
    312728293031
    32
   Verfügbarkeit am ausgewählten Datum prüfen
Frei
Nicht frei
   Ankunft möglich
Dauer
Personen

Preis

Zeitraum
Ankunft
Abreise
Dauer
1 Woche
Personen
Keine Personen ausgewählt

Bitte beachten

Ankunftszeit wurde nicht ausgewählt.
Es wurden keine Personen ausgewählt.
Vertrags- und Mietbedingungen