Gemütliche Ferienwohnung nahe Strand und Seedeich

Störtebeker Straße - 25826 - St. Peter-Ording

Objekt Nr.: 530-509443
Gemütliche Ferienwohnung Waterkant SPO 4 in ruhiger Lage, nur 50 Meter vom Seedeich und nahe dem Strand von St. Peter-Ording.
  • Schlafzimmer 2
  • Badezimmer 1
  • Wohnfläche 67 m²
  • Haustiere Nicht erlaubt
  • Kurzurlaub möglich Ja
  • Internet Ja
  • Geschirrspüler Ja
  • Nichtraucher Ja

Beschreibung

Appartement Waterkant SPO 4

Die gemütliche Ferienwohnung finden Sie im Ortsteil Ording in einzigartiger und sehr ruhiger Lage. Der große Seedeich ist nur 50 Meter entfernt, zwei Strandüberfahrten befinden sich in fußläufiger Entfernung, so dass Sie schnell den berühmten Sandstrand von St. Peter-Ording erreichen.

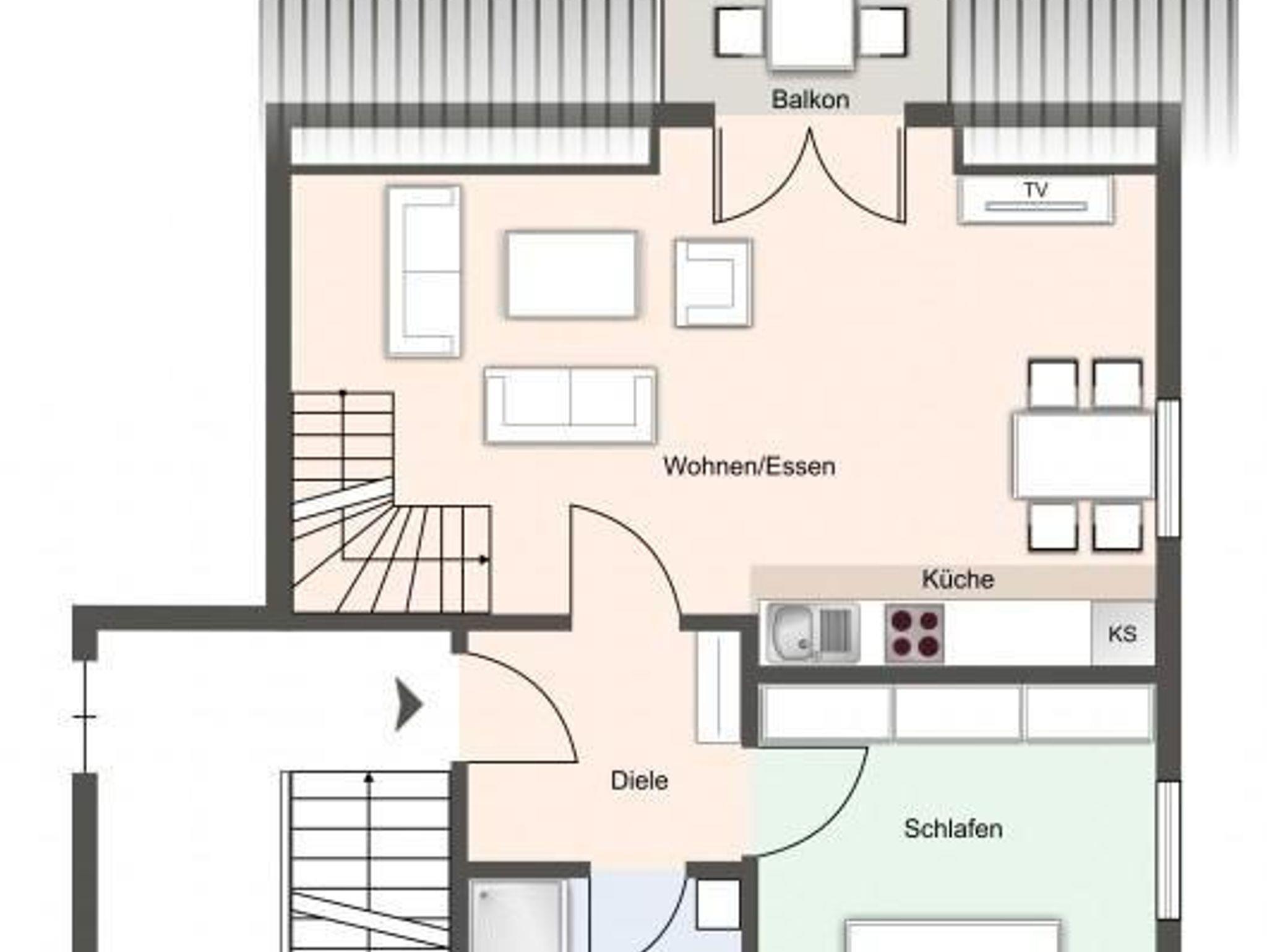
Im Obergeschoss über die breite Treppe erreichen Sie die 67 qm große Ferienwohnung Waterkant SPO 4. Über den großzügigen Wohn-Essbereich gelangen Sie zum ausgebauten Spitzboden, der drei Betten und einen fantastischen Blick über Ording bis zum Westerhever-Leuchtturm bietet. Das Doppelschlafzimmer erreichen Sie vom großzügigen Flur und es bietet herrliche Ruhe. Fliesen im Obergeschoss und Laminat im Spitzboden bieten einen sehr guten Wohnkomfort. Die Wohnung hat einen eigenen Gartenbereich mit Strandkorb und Düne vor dem Haus, sowie einen Autostellplatz.

Gesamte Ausstattung

  • Grundeinrichtungen

    • Größe
      67 m²
  • Kinder einrichtungen

    • Familienfreundlich
  • Serviceeinrichtungen

    • Backofen
    • Bad/WC
    • Balkon
    • Dusche/WC
    • Gefriermöglichkeit
    • Herd
    • Haartrockner
    • Internet - WLAN
    • Kaffeemaschine
    • Mehrere Schlafzimmer
    • Mikrowelle
    • Nichtraucher
    • Separate Küche
    • Separater Wohnraum
    • Sitzgruppe
    • Spülmaschine
    • Strandkorb (persönlich)
    • Terrasse
    • Tiere nicht erlaubt
    • Toaster
    • TV
    • TV - Flachbild
    • Wasserkocher
    • WC-Toilette
  • Umliegende einrichtungen

    • Fahrradunterstellmöglichkeit
    • Garten zur Nutzung
    • Parkplatz
    • Strandkorb
  • Unterkünfte

    • Internet im öff. Bereich
    • Nichtraucherhaus

Kurzurlaub

Es besteht eine begrenzte Möglichkeit das ganze Jahr einen Kurzurlaub zu machen, typischerweise ausserhalb der Hochsaison.

Prices and calendar

Kalender

Ankunft
Vorheriger Monat Nächster Monat
  • Juni 2026
    MoDiMiDoFrSaSo
    231234567
    24891011121314
    2515161718192021
    2622232425262728
    272930
    28
  • Juli 2026
    MoDiMiDoFrSaSo
    2712345
    286789101112
    2913141516171819
    3020212223242526
    312728293031
    32
   Verfügbarkeit am ausgewählten Datum prüfen
Frei
Nicht frei
   Ankunft möglich
Dauer
Personen

Preis

Zeitraum
Ankunft
Abreise
Dauer
1 Woche
Personen
Keine Personen ausgewählt

Bitte beachten

Ankunftszeit wurde nicht ausgewählt.
Es wurden keine Personen ausgewählt.
Vertrags- und Mietbedingungen