Exklusive Ferienwohnung mit Garten in Hamdorf

Schulkoppel 7 a - 24805 - Hamdorf

Objekt Nr.: 540-3108-2867
Exklusive Ferienwohnung mit traumhaftem Blick auf das Eidertal und komfortabler Ausstattung in Hamdorf.
  • Schlafzimmer 1
  • Badezimmer 1
  • Wohnfläche 60 m²
  • Haustiere 1
  • Kurzurlaub möglich Nein
  • Entfernung Wasser 1.800 m
  • Internet Ja
  • Satelliten-/Kabel TV Ja
  • Waschmaschine Ja
  • Geschirrspüler Ja
  • Nichtraucher Ja

Beschreibung

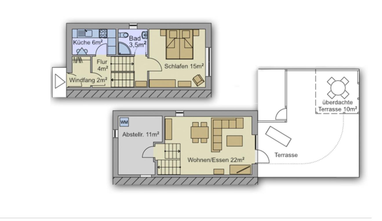
Ferienwohnung/App. für 2 Gäste mit 60m² in Hamdorf (3108) (Erdgeschoss und 1. Stock)

In dieser exklusiven Ferienwohnung erwartet Sie ein atemberaubender Blick über das Eidertal und die Kanalniederungen. Die Architektur der hellen Innenräume und die hochwertige, gemütliche Einrichtung laden dazu ein, Ihre Urlaubstage in vollen Zügen zu genießen.

Ihr Fahrzeug findet im Carport einen sicheren Platz. Im Geräteraum stehen zudem zwei komfortable Fahrräder für Sie bereit und es gibt ausreichend Platz, um eigene Gegenstände unterzustellen. Die Wohnung verfügt über einen separaten Eingang mit einem Windfang und einer Garderobe.
In der Küche erwartet Sie ein gemütlicher Essplatz für den kleinen Hunger. Ein halber Treppenabsatz nach unten führt Sie in den großzügigen Wohnraum mit einem weiteren Esstisch. Von hier aus gelangen Sie direkt auf die Terrasse und zum kleinen Gartenhaus, das an 2 1/2 Seiten geschlossen ist und mit verglasten Elementen zum Eidertal hin gestaltet ist. Hier können Sie bei Bedarf auch ungestört rauchen. Das Grundstück ist komplett eingezäunt, sodass auch Ihr Hund sicher herumlaufen kann.
Am Wohnzimmer befindet sich ein geräumiger Abstellraum mit Waschmaschine und viel Stauraum. Ein halber Treppenabsatz nach oben führt Sie zum Duschbad und direkt anschließend zum Schlafzimmer. Die Fenster haben niedrige Brüstungen, sodass Sie bereits vom Bett aus den Blick über die Wiesen genießen können. Für Frühaufsteher steht hier auch ein gemütlicher Sessel bereit.

Unsere Gästebewertungen Externe Bewertungen

Keine eigene Gästebewertungen
4,9
2 externe Bewertungen
5,0
Oktober 2024
Einrichtungen:
5
Lage:
5
Preis-Leistung:
5
Reinigung:
5
Service vor Ort:
5
Allgemein:
Jederzeit wieder. Sehr schön
4,8
Juni 2024
Einrichtungen:
5
Lage:
4
Preis-Leistung:
5
Reinigung:
5
Service vor Ort:
5

Ausstattung

  • Allg. Ausstattung

    • Nichtraucher
    • Waschmaschine
  • Allgemein

    • Hund erlaubt
  • Außen

    • Abstellraum
    • Grill
  • Außenanlage

    • Carport
    • Gartenstühle
    • Liegen
    • Terrasse/Freisitz
  • Ausstattung Bad/WC

    • Fonds
  • Badezimmer

    • Dusche
  • Basic

    • Größe
      60 m²
    • Küchen
      1
    • Wohnzimmer
      1
  • Entfernung

    • Aukrug
      28,7 km
    • Badesee, Badestelle oder Freibad
      1,8 km
    • Bordesholm
      50,4 km
    • Eckernförde
      41 km
    • Entfernung zum Ochsenweg
      13 km
    • Entfernung zur Autobahn
      20 km
    • Entfernung zur NordArt
      16,8 km
    • Entfernung zur Ostsee
      42 km
    • Flensburg
      73,9 km
    • Flintbek
      60 km
    • Focks
      11,7 km
    • Hintere Wache
      39,7 km
    • Hohenwestedt
      41,1 km
    • Jevenstedt
      25 km
    • Kiel
      51,1 km
    • Neumünster
      57,9 km
    • NOK-Route
      4 km
    • Nortorf
      40 km
    • Osterrönfeld
      20,8 km
    • Rendsburg
      16 km
    • Schleswig
      39,2 km
    • Tierpark Arche Warder
      40,9 km
    • Westensee
      39,9 km
  • Küche

    • Backofen
    • Gefrierfach
    • Herd (4 Platten)
    • Kaffeemaschine
    • Küchenzeile/-block
    • Kühlschrank
    • Mikrowelle
    • Rührgerät
    • Toaster
    • Wasserkocher
  • Küchenausstattung

    • Spülmaschine
  • Schlafzimmer

    • Doppelbetten
  • Service

    • Bettwäsche inkl.
    • Fahrräder vorhanden
    • Geschirrtücher inkl.
  • Wohn-/Bad-/Schlafbereich

    • Internet/WLAN
  • Wohn-/Schlafbereich

    • DVD Spieler
    • TV mit Sat/Kab./DVB-T
  • Wohnen & Schlafen

    • CD-Player
  • Wohnzimmer

    • Stereoanlage/Radio

Prices and calendar

Kalender

Ankunft
Vorheriger Monat Nächster Monat
   Verfügbarkeit am ausgewählten Datum prüfen
Frei
Nicht frei
   Ankunft möglich
Dauer

Preis

Zeitraum
Ankunft
Abreise
Dauer
1 Woche
Personen
Bis zu 2 Personen

Bitte beachten

Ankunftszeit wurde nicht ausgewählt.
Vertrags- und Mietbedingungen