Luxuriöses Penthouse mit Seeblick und Sauna

Wiefelsteder Straße - 26160 - Bad Zwischenahn

Objekt Nr.: 552-82153
Luxuriöses Penthouse mit Seeblick, Sauna und Parkplatz in Bad Zwischenahn für erholsame Urlaubstage.
  • Schlafzimmer 2
  • Badezimmer 1
  • Wohnfläche 82 m²
  • Haustiere Nicht erlaubt
  • Kurzurlaub möglich Ja
  • Entfernung Wasser 0 km
  • Einkaufen 3 m
  • Sauna Ja
  • Internet Ja
  • Satelliten-/Kabel TV Ja
  • Geschirrspüler Ja
  • Nichtraucher Ja

Beschreibung

SmartFewo: Pedelec | Penthouse | Sauna | Parkplatz

Willkommen bei der Residenz am kleinen Meer in Bad Zwischenahn. Unsere Ferienwohnung "Pedelec" verfügt über alles, was Du für einen schönen Aufenthalt brauchst: ? 2 Schlafzimmer mit bequemem King- & Queensize Bett ? Gemütliche Schlafcouch ? Großes Penthouse mit Seeblick ? Sauna auf der Anlage ? Parkplatz direkt am Haus ? Voll ausgestattete Küche ? Modernes Interior Design ? Arbeitsplatz/Schreibtisch ? Schnelles W-Lan ?"Absolute Spitzenklasse, das Penthouse übertraf alle Erwartungen – magisch!"

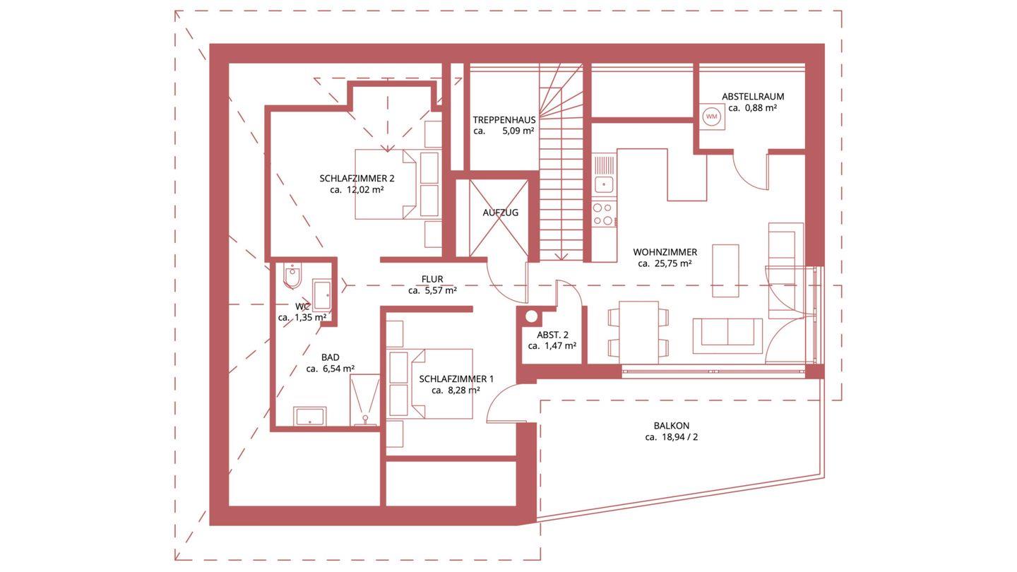
Dieses stylische Penthouse direkt am See wurde kürzlich im großen Stil neu eingerichtet und erwartet Dich mit erstklassiger Ausstattung, einer großen Terrasse mit Seeblick und bietet Platz für 6 Gäste. Mit dem Auto stehen Dir ausreichend Parkplätze direkt auf der Ferienanlage zur Verfügung. Dich erwartet ein 82 Quadratmeter großes Penthouse mit 1 Schlafzimmer, 1 Bad, Wohnzimmer und Küche. Beginne Deinen Tag mit leckerem Kaffee und genieße all die Annehmlichkeiten dieses Apartments, einschließlich der großen Terrasse mit exklusivem Seeblick, großzügigen Sitzbereichen für 6 Personen, einem Grill und Zugang zur Sauna auf der Anlage. Die Wohnung ist inspiriert vom Element Luft, was sich in einem ruhigen und erfrischenden Interior-Design widerspiegelt. Das erste Schlafzimmer bietet ein gemütliches 1,80m Doppelbett. Im zweiten Schlafzimmer findest du ein bequemes queensize Bett. Im Wohnzimmer befindet sich ebenfalls noch eine Schlafcouch. Hier erlebst Du, ideal für Familienbesuche, einen großen und bequemen Sitzbereich mit Sofa und TV. Zusätzlich gibt es einen Arbeitsplatz mit Schreibtisch und schnellem Internet, perfekt für produktive Stunden oder als Homeoffice. Die Küche ist voll ausgestattet mit Herd, Kühlschrank, Backofen, Spülmaschine, Mikrowelle und allem, was Du zum Kochen brauchst. Zusätzlich steht eine Waschmaschine zur Verfügung. Natürlich stellen wir frische Handtücher und alle wichtigen Dinge wie Duschgel & Shampoo bereit. Ein perfekter Rückzugsort für dein Wohlbefinden.

Raumaufteilung

  • Schlafzimmer, 2 Personen
    • Verdunklungsvorhänge, Kleiderschrank
    • Doppel-Boxspringbett (Extra hoch, Offenes Fußteil)
  • Schlafzimmer, 2 Personen
    • Verdunklungsvorhänge, Kleiderschrank
    • Doppel-Boxspringbett (Extra hoch, Offenes Fußteil)
  • Wohnzimmer, 2 Personen
    • Verdunklungsvorhänge
    • Kleine Doppelcouch (Offenes Fußteil)

Unsere Gästebewertungen Externe Bewertungen

Keine eigene Gästebewertungen
4,8
25 externe Bewertungen
5,0
Mai 2025
5,0
Mai 2024
5,0
Mai 2024
5,0
Mai 2024
4,5
Oktober 2023
5,0
Juni 2023
5,0
April 2022
4,0
April 2022
4,0
Februar 2022
5,0
November 2021
5,0
Oktober 2021
5,0
August 2021
5,0
Juni 2021
4,8
Oktober 2020
5,0
Juli 2020
4,7
Juni 2020
4,0
Juni 2020
5,0
August 2019
0,0
August 2019
5,0
Juli 2019
5,0
Juni 2019
4,5
Mai 2019
5,0
Mai 2019
4,7
April 2019
5,0
August 2018

Gesamte Ausstattung

  • Aktivitäten

    • Angeln
    • Basketball
    • Billard
    • Boccia
    • Bootsverleih
    • Fahrräder
    • Fitnesstraining
    • Fußball
    • Golf
    • Gymnastik
    • Joggen
    • Kajakfahren
    • Kanusport
    • Kutschenfahrten
    • Minigolf
    • Mountainbiking
    • Nordic Walking
    • Radfahren
    • Reiten
    • Rudern
    • Schwimmen
    • Segeln
    • Tennis
    • Trekking
    • Wandern
    • Wasserski
    • Wassersport
    • Wellness
    • Yoga
  • Bad

    • Anzahl der Duschen
      1
    • Badezimmerfenster
    • Dusche
    • Gäste-WCs
      1
    • Handtücher
    • Haartrockner
    • Waschbecken
    • WC
  • Basic

    • Anzahl der Stockwerke
      2
    • Baujahr
      2017
    • JahrRenovierung
      2023
    • Kinder willkommen
    • Nichtraucher
    • Quadratmeter
      82 m²
    • Zimmer
      3
  • Draußen

    • Anzahl der Parkplätze
      2
    • Barbeque
    • Carport
    • Garten
    • Gartenmöbel
    • Grundstücksgröße
      6500
    • Liegewiese
    • Privater P-Platz
    • Ruderboot
    • Sonnenschirm
    • Terrasse
  • Entfernung

    • Entfernung Einkauf
      3 m
    • FlughafenEntfernung
      64 km
    • MeerEntfernung
      2 m
    • StadtEntfernung
      3 m
    • Strandentfernung
      2 m
  • Küche

    • Backofen
    • Gefrierfach
    • Kaffeemaschine
    • Kochutensilien
    • Küche
    • Kühlschrank
    • Microwelle
    • Spülmaschine
    • Teller
    • Toaster
    • Wasserkocher
  • Unterkunft

    • Allergikerfreundlich
    • Anrichte
    • Anzahl der Fernseher
      2
    • Babybett
      2
    • Balkon
    • Betten
      6
    • Bettwäsche
    • Blick auf die Landschaft
    • Brötchenservice
    • Bücher
    • Bügelbrett
    • Bügeleisen
    • Digitales Fernsehen
    • Einkaufen
    • Erstausstattung
    • Esstisch
    • Esszimmer
    • Familie
    • Feueralarm
    • Feuerlöscher
    • Freistehend
    • Fußbodenheizung
    • Ganzkörperspiegel
    • Gartenaussicht
    • Geschlossene Terrasse
    • Heizung
    • Herd
    • Hochstuhl
      2
    • Internet
    • Jalousie
    • Kamin
    • Kinderbetten
      1
    • Kleiderschrank
    • Kultur
    • Lounge-Sitzgelegenheiten
    • Luxus
    • Mülleimer
    • Möglichkeit zur Raumverdunkelung
    • Radio
    • Rauchmelder
    • Safe
    • Sauna
    • Schlafsofas
      1
    • Schminkspiegel
    • Schreibtisch
    • Schuhschrank
    • Sessel
    • Sitzgelegenheiten im Esszimmer
    • Sofa
    • Spiegel
    • Spiele
    • Staubsauger
    • Tages-Spa
    • TV
    • Verbandkasten
    • Warmes Wasser
    • Waschmaschine
    • WLAN
    • Wohnzimmer
    • Wäscheständer

Kurzurlaub

Sie haben das ganze Jahr die Möglichkeit einen Kurzurlaub zu machen.

Prices and calendar

Kalender

Ankunft
Vorheriger Monat Nächster Monat
   Verfügbarkeit am ausgewählten Datum prüfen
Frei
Nicht frei
   Ankunft möglich
Dauer
Personen

Preis

Zeitraum
Ankunft
Abreise
Dauer
1 Woche
Personen
Keine Personen ausgewählt

Bitte beachten

Ankunftszeit wurde nicht ausgewählt.
Es wurden keine Personen ausgewählt.
Vertrags- und Mietbedingungen