Ferienwohnung am Sandwall in zentraler Lage

Sandwall - 25938 - Wyk Auf Föhr

Objekt Nr.: 552-198682
Moderne Ferienwohnung am Sandwall mit Balkon, WLAN und nur wenige Meter vom Strand in Wyk auf Föhr.
  • Schlafzimmer 2
  • Badezimmer 1
  • Wohnfläche 50 m²
  • Haustiere Nicht erlaubt
  • Kurzurlaub möglich Ja
  • Internet Ja
  • Geschirrspüler Ja
  • Nichtraucher Ja

Beschreibung

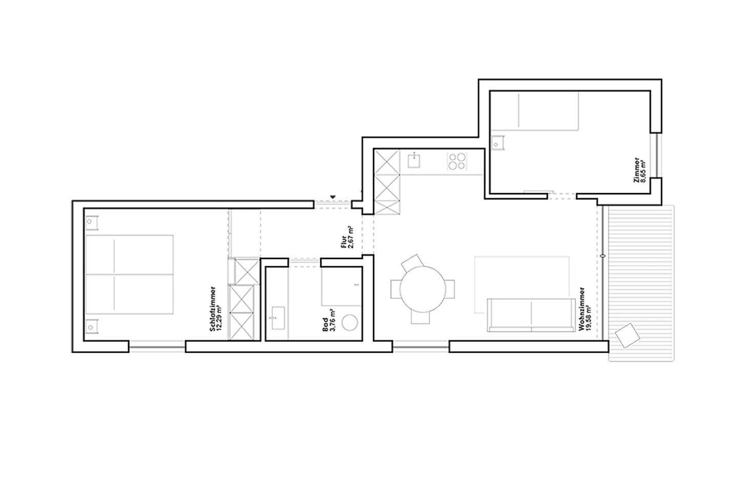
Ferienwohnung am Sandwall mit 3 - Zimmern auf ca. 50m²

Ferienwohnung am Sandwall mit 3 - Zimmern auf ca. 50m² in der 1 Etage - Wohnzimmer mit Eckcouch und 48cm hoch, 55 Zoll Smart TV, Küchenzeile und Esstisch - Schlafzimmer 1 mit Doppelbett, Kleiderschrank - Schlafzimmer 2 mit Einzelbett und Schreibtisch - Badezimmer mit Dusche/ WC und kleiner Waschmaschine - W-LAN - Ostbalkon mit Gartenmöbeln (Tisch und 2 Stühle) - Parkplatz Nr. 15 hinterm Haus - Zum Strand und in die Innenstadt sind es nur wenige Meter zu Fuß. Zum AQUAFÖHR sind es 500m zu Fuß

Willkommen in bester Stadtlage im Herzen von Wyk auf Föhr und einer Ferienwohnung, die alle Vorzüge einer zentralen und dennoch ruhigen, naturnahen Lage bietet. Die Ferienwohnung mit Süd/Ostbalkon am Sandwall 60, WHG Nr. 1.2 befindet sich in zweiter Reihe zum Meer und der wunderschönen Wyker Strandpromenade. Wohnung verfügt über ca. 50qm, aufgeteilt auf 3-Zimmer in der 1. Etage eines Mehrfamilienhauses. Die hellen und offenen Räume laden zu einem wunderbaren Urlaub ein. Im gemütlichen WOHNZIMMER mit ESSBEREICH und KÜCHE entspannen sie auf einer Eckcouch (48cm hoch) und können den Abend vor dem großen Smart/TV ausklingen lassen. Die KÜCHENZEILE mit Ceranherd, Backofen und Geschirrspülmaschine lädt zum Kochen ein. Im Badezimmer finden Sie Dusche und WC (Rutschfest und mit Haltegriff) und und eine kleine Waschmaschine. Das SCHLAFZIMMER ist ausgestattet, mit einem Doppelbett (1,80 x 2m) und großzügigem Einbauschrank. Das kleine Schlafzimmer ist mit einem Einzelbett ausgestattet, ein Arbeitsplatz befindet sich hier auch. Die gesamte Wohnung ist mit Laminat ausgelegt. Auf dem Hof befindet sich ein der Wohnung zugehöriger Parkplatz Nr. 15, welcher für Sie zur Verfügung steht. Durch die direkte Stadtlage sind es zum Strand und in die Fußgängerzone nur wenige Meter zu Fuß. Die Wohnung wurde 2024/25 komplett renoviert.

Raumaufteilung

  • Schlafzimmer, 2 Personen
    • Verdunklungsvorhänge, Kleiderschrank
    • Doppelbett (Offenes Fußteil)
  • Schlafzimmer, 1 Person
    • Kleiderschrank
    • Einzelbett (Offenes Fußteil)

Unsere Gästebewertungen Externe Bewertungen

Keine eigene Gästebewertungen
4,7
8 externe Bewertungen
4,8
April 2026
Allgemein:
Diese Wohnung ist der absolute Hit. Sogar ein Haltegriff i.d. Dusche, eine Wasserabziehfletsche u. eine Halterung für Duschgel war vorhanden. Sauber u. gemütlich. Unbedingt sehr empfehlenswert!!!
5,0
September 2025
Allgemein:
Sehr ruhig gelegene Wohnung und doch nah an der Promenade und zum Städtchen. Ich habe mich sehr wohl gefühlt und die Nähe zum Strand genossen. Die Wohnung ist sehr gut ausgestattet, es fehlte an nichts. Ich würde diese Unterkunft wieder buchen.
4,0
Juni 2025
5,0
Mai 2025
5,0
August 2024
4,5
August 2024
Allgemein:
Die sehr schöne Wohnung liegt sehr günstig nah der Promenade und am Fußgängerbereich und hat einen Parkplatz am Haus. Wir haben uns dort sehr wohl gefühlt. Schade, dass die Sicht und auch die Sonne durch die Nordseeklinik behindert wird.
4,3
August 2024
Allgemein:
Empfehlenswert. Gute Ausstattung und Lage. Sehr sauber. Ein Lob an den Eigentümer. Wirklich gelungen.
5,0
Juli 2024
Allgemein:
Sehr schöne Wohnung mit Balkon in Promenadennähe.

Gesamte Ausstattung

  • Bad

    • Anzahl der Duschen
      1
    • Dusche
    • Haartrockner
    • Waschbecken
    • WC
  • Basic

    • Kinder willkommen
    • Nichtraucher
    • Quadratmeter
      50 m²
    • Zimmer
      3
  • Draußen

    • Anzahl der Parkplätze
      1
    • Privater P-Platz
  • Entfernung

    • FlughafenEntfernung
      3000 km
    • StadtEntfernung
      130 m
    • Strandentfernung
      50 m
  • Küche

    • Backofen
    • Gefrierfach
    • Kaffeemaschine
    • Küche
    • Kühlschrank
    • Rührgerät
    • Spülmaschine
    • Toaster
    • Wasserkocher
  • Unterkunft

    • Anrichte
    • Anzahl der Fernseher
      1
    • Balkon
    • Betten
      3
    • Doppelbetten
      1
    • Einzelbetten
      1
    • Esstisch
    • Heizung
    • Herd
    • Internet
    • Kleiderschrank
    • Möglichkeit zur Raumverdunkelung
    • Rauchmelder
    • Sofa
    • Staubsauger
    • TV
    • Waschmaschine
    • WLAN
    • Wäscheständer

Kurzurlaub

Es besteht eine begrenzte Möglichkeit das ganze Jahr einen Kurzurlaub zu machen, typischerweise ausserhalb der Hochsaison.

Prices and calendar

Kalender

Ankunft
Vorheriger Monat Nächster Monat
  • November 2026
    MoDiMiDoFrSaSo
    441
    452345678
    469101112131415
    4716171819202122
    4823242526272829
    4930
  • Dezember 2026
    MoDiMiDoFrSaSo
    49123456
    5078910111213
    5114151617181920
    5221222324252627
    5328293031
    1
   Verfügbarkeit am ausgewählten Datum prüfen
Frei
Nicht frei
   Ankunft möglich
Dauer
Personen

Preis

Zeitraum
Ankunft
Abreise
Dauer
1 Woche
Personen
Keine Personen ausgewählt

Bitte beachten

Ankunftszeit wurde nicht ausgewählt.
Es wurden keine Personen ausgewählt.
Vertrags- und Mietbedingungen