Ferienwohnung mit Meerblick und Strandkorb

Am Flugplatz - 25938 - Wyk Auf Föhr

Objekt Nr.: 552-103831
Gemütliche Ferienwohnung mit Meerblick, zwei Balkonen und Strandkorb direkt am Wyker Strand.
  • Schlafzimmer 2
  • Badezimmer 1
  • Wohnfläche 78 m²
  • Haustiere Nicht erlaubt
  • Kurzurlaub möglich Ja
  • Entfernung Wasser 50 m
  • Einkaufen 1 km
  • Internet Ja
  • Wasserblick Ja
  • Geschirrspüler Ja
  • Nichtraucher Ja

Beschreibung

Direkt am Meer, mit zwei Balkonen

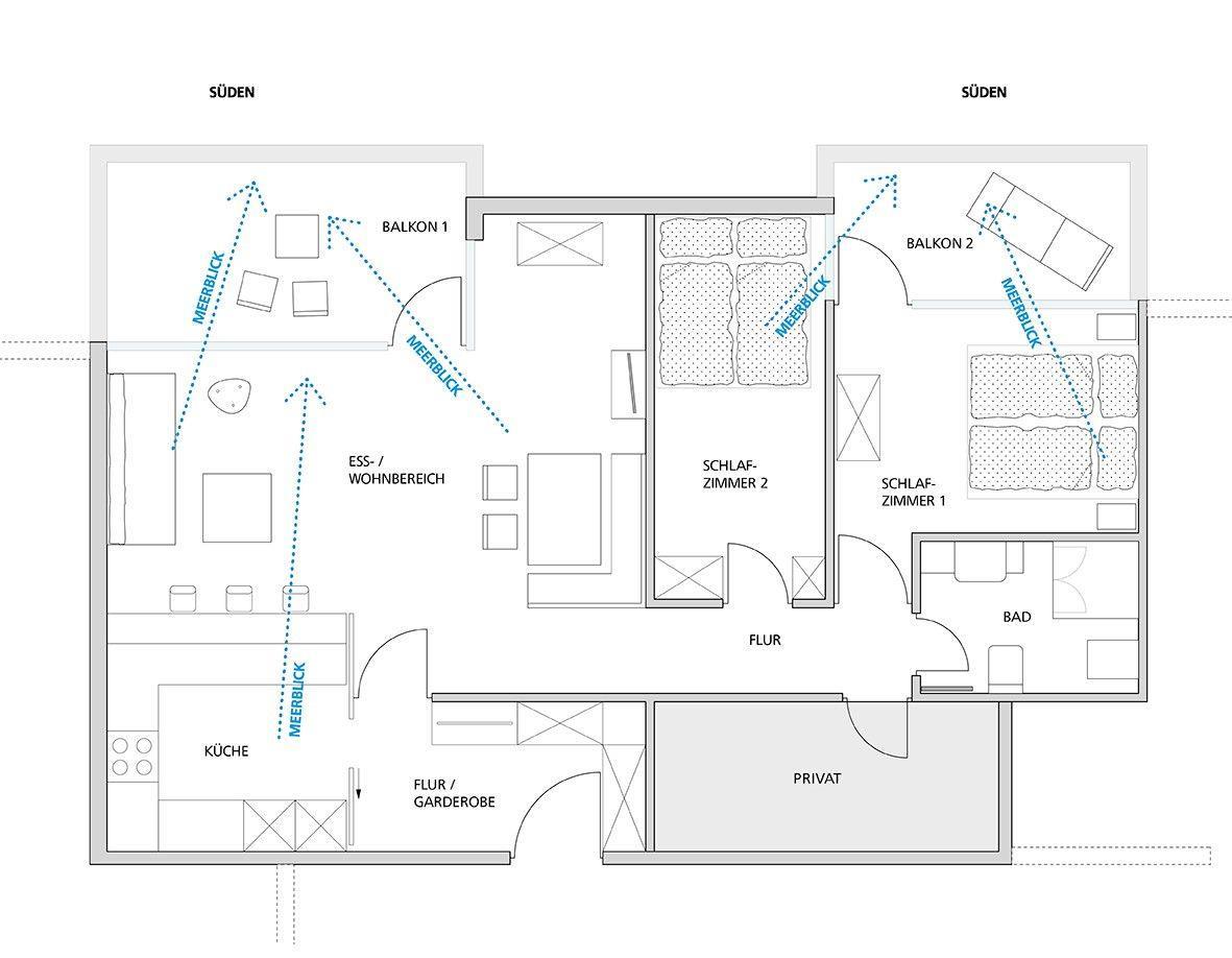
Die liebevoll und individuell eingerichtete Wohnung liegt im 3. Stock (Aufzug vorhanden) von Haus Hooge. Ein bis vier Personen können hier in gemütlichem und geschmackvollem Ambiente einen erholsamen Urlaub verleben. Der vom Wohnzimmer aus zugängliche überdachte Balkon liegt in Südlage. Vom Schlafzimmer aus haben Sie Zugang zum 2. Balkon. Das Schwimmbad (kostenlos) und die Sauna (gegen Gebühr) im Nachbarhaus Uthlande stehen Ihnen zur Verfügung. Für Ihre Entspannung und den perfekten Strandtag bieten wir Ihnen einen Strandkorb inklusive Strandlaken am Wyker Strand (Abschnitt 28), nur wenige Gehminuten von der Wohnung entfernt.

Stimmungsvolle Ausblicke auf die Nordsee bietet die helle und modern eingerichtete Wohnung "Wattkönig". Sie befindet sich im 3. Stock des Haus Hooge (Aufzug vorhanden) und wurde Anfang 2021 in großen Teilen renoviert. Der kombinierte Wohn-, Ess- und Küchenbereich ist das Herzstück der Wohnung. Ob von der urigen Holz-Sitzecke mit Esstisch, vom Sofa oder vom Tresen aus der Küche: von überall ist der Blick auf das Meer zu genießen. Ein überdachter Balkon ist vom Wohnzimmer aus zu betreten, der andere vom Schlafzimmer. Eine neu gestaltete praktische Garderobe, ein Duschbad und zwei Schlafzimmer mit je einem Doppelbett (je 1,80m breit) komplettieren auf insgesamt 78qm die liebevoll eingerichtete und rund um das Jahr gut nutzbare Ferienwohnung. Die Wohnung ist u.a. mit Flachbildschirm (SAT-TV), Induktionsherd, Ofen, Kaffeemaschine, Wasserkocher, Geschirrspülmaschine, Kühlschrank mit Gefrierfach und Waschmaschine ausgestattet. Für Ihre Entspannung und den perfekten Strandtag bieten wir Ihnen einen Strandkorb inklusive Strandlaken am Wyker Strand (Abschnitt 28), nur wenige Gehminuten von der Wohnung entfernt.

Raumaufteilung

  • Schlafzimmer, 2 Personen
    • Kleiderschrank
    • Doppelbett (Extra hoch, Offenes Fußteil)
  • Schlafzimmer, 2 Personen
    • Verdunklungsvorhänge, Kleiderschrank
    • Doppelbett (Extra hoch, Offenes Fußteil)

Unsere Gästebewertungen Externe Bewertungen

Keine eigene Gästebewertungen
4,9
25 externe Bewertungen
5,0
Oktober 2025
4,4
Oktober 2025
4,7
August 2025
4,8
Juni 2025
4,9
Juni 2025
4,6
April 2025
4,9
April 2025
Allgemein:
Wir hatten eine schöne Zeit in dieser tollen Wohnung. Sie ist sehr hell und sauber, die Küche ist top ausgestattet. Für uns gewöhnungsbedürftig war, dass das Haus sehr hellhörig ist. Der phantastische Blick aus dem Wohn- und Schlafzimmer macht dies aber in jedem Fall wieder wett. Es war einfach nur herrlich, den Blick über das Watt schweifen zu lassen. Wir kommen bestimmt wieder!
5,0
Dezember 2024
Allgemein:
Schöne Wohnung, sehr gut ausgestattet und klasse Lage.
5,0
Oktober 2024
Allgemein:
Die Wohnung ist so schön wie auf den Bildern beschrieben. Der Ausblick von den Balkonen ist ein Traum. Und auch der Kontakt zu hoch im Norden ist sehr freundlich und kompetent. Vielen Dank für alles.
5,0
September 2024
Allgemein:
Großzügige, lichtdurchflutete Wohnung in bester Lage am Südstrand und mit traumhaft schönen Blick auf die Halligen. Sehr schön eingerichtet und bestens ausgestattet. Nur wenige Schritte bis zum Deich und der Entscheidung zwischen Spaziergang linksrum Richtung Wyk Zentrum, rechtsrum Richtung Goting oder geradeaus zum Wattlaufen bzw. Eintauchen in die Nordsee. Absolut empfehlenswert!
4,9
Juni 2024
Allgemein:
Die Organisation von der An-bis zur Abreise hat super funktioniert. Es wurde an alles gedacht. Danke an das Hoch im Norden Team für den Super Service.
5,0
Mai 2024
4,9
November 2023
4,9
Oktober 2023
4,7
Oktober 2023
4,7
Juli 2023
5,0
Juni 2023
4,7
August 2022
5,0
Juni 2022
5,0
Dezember 2021
4,9
Oktober 2021
4,9
Oktober 2021
5,0
September 2021
5,0
Juni 2021
4,9
Juni 2021

Gesamte Ausstattung

  • Bad

    • Anzahl der Duschen
      1
    • Dusche
    • Handtücher
    • Haartrockner
    • Waschbecken
    • WC
  • Basic

    • Anzahl der Stockwerke
      6
    • Kinder willkommen
    • Nichtraucher
    • Quadratmeter
      78 m²
    • Zimmer
      3
  • Draußen

    • Anzahl der Parkplätze
      1
    • Privater P-Platz
    • Strandstuhl
  • Entfernung

    • Entfernung Einkauf
      1 km
    • MeerEntfernung
      50 m
    • RestaurantEntfernung
      250 m
    • StadtEntfernung
      1,5 km
    • Strandentfernung
      50 m
  • Küche

    • Backofen
    • Gefrierfach
    • Kaffeemaschine
    • Kochutensilien
    • Küche
    • Kühlschrank
    • Rührgerät
    • Spülmaschine
    • Teller
    • Toaster
    • Wasserkocher
  • Unterkunft

    • Allergikerfreundlich
    • Anzahl der Fernseher
      1
    • Aufzug
    • Balkon
    • Betten
      4
    • Bettwäsche
    • CD Gerät
    • CDs
    • Doppelbetten
      2
    • DVD
    • Esstisch
    • Esszimmer
    • Heizung
    • Herd
    • Internet
    • Jalousie
    • Kleiderschrank
    • Lounge-Sitzgelegenheiten
    • Mülleimer
    • Möglichkeit zur Raumverdunkelung
    • Radio
    • Seeblick
    • Sitzgelegenheiten im Esszimmer
    • Sofa
    • Spiegel
    • Spiele
    • Staubsauger
    • TV
    • Warmes Wasser
    • WLAN
    • Wohnzimmer
    • Wäscheständer
    • Überdachte Terrasse

Kurzurlaub

Es besteht eine begrenzte Möglichkeit das ganze Jahr einen Kurzurlaub zu machen, typischerweise ausserhalb der Hochsaison.

Prices and calendar

Kalender

Ankunft
Vorheriger Monat Nächster Monat
  • Juni 2026
    MoDiMiDoFrSaSo
    231234567
    24891011121314
    2515161718192021
    2622232425262728
    272930
    28
  • Juli 2026
    MoDiMiDoFrSaSo
    2712345
    286789101112
    2913141516171819
    3020212223242526
    312728293031
    32
   Verfügbarkeit am ausgewählten Datum prüfen
Frei
Nicht frei
   Ankunft möglich
Dauer
Personen

Preis

Zeitraum
Ankunft
Abreise
Dauer
1 Woche
Personen
Keine Personen ausgewählt

Bitte beachten

Ankunftszeit wurde nicht ausgewählt.
Es wurden keine Personen ausgewählt.
Vertrags- und Mietbedingungen