Gemütliches Einzelzimmer nahe Strand in Wyk

Waldstr. - 25938 - Wyk Auf Föhr

Objekt Nr.: 540-123938-91479
Gemütliches Einzelzimmer in der Pension Hilligenlei nahe dem Südstrand von Wyk auf Föhr für einen erholsamen Nordseeurlaub.
  • Badezimmer 1
  • Wohnfläche 14 m²
  • Haustiere Nicht erlaubt
  • Kurzurlaub möglich Nein
  • Entfernung Wasser 250 m
  • Einkaufen 200 m
  • Internet Ja
  • Satelliten-/Kabel TV Ja
  • Waschmaschine Ja
  • Trockner Ja
  • Nichtraucher Ja

Beschreibung

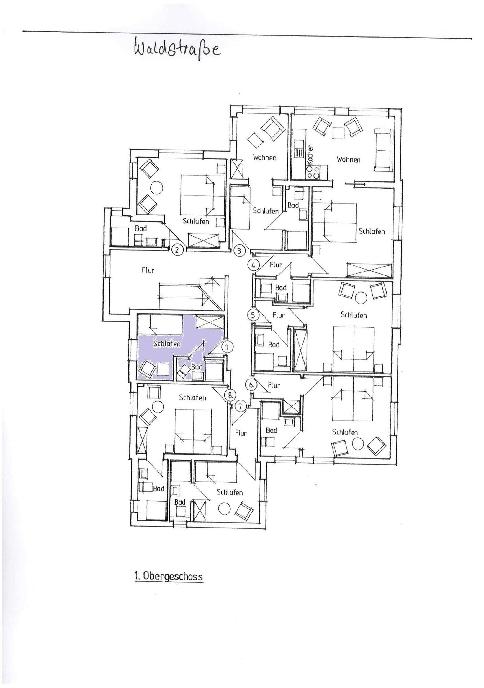
Einzelzimmer für 1 Gast mit 14m² in Wyk auf Föhr (123938) (1. Stock)

Pension Hilligenlei – Ihr Rückzugsort für einen erholsamen Urlaub in Wyk!

Nahe dem Südstrand von Wyk gelegen, erwartet Sie unsere Pension Hilligenlei – der ideale Ort für einen unvergesslichen Urlaub an der Nordsee. Das charmante Haus wurde 1911 erbaut und wird bereits in der dritten Generation geführt. Die Geschichte des Hauses begann als Kinderkurheim und wurde in den 60er Jahren zur Frühstückspension umstrukturiert. Heute bietet es Ihnen eine komfortable Unterkunft und einen entspannten Aufenthalt.

Bitte beachten: Ab 2027 stehen Brötchen und Kaffee zur Selbstzubereitung Ihres Frühstückes bereit. Weitere (eigene) Zutaten können im großen Kühlschrank der Teeküche gelagert werden.

Für Ihren Komfort steht Ihnen eine Teeküche mit einem kleinen Kühlschrank zur gemeinschaftlichen Nutzung zur Verfügung, ideal für kalte Speisen oder kleine Erfrischungen. Zudem können Sie gegen eine kleine Gebühr unsere Waschmaschine nutzen, um Ihre Wäsche während Ihres Aufenthalts zu waschen.

Klein, aber besonders charmant – dieses Einzelzimmer ist das kleinste, aber keineswegs weniger gemütlich!
Es bietet Ihnen alles, was Sie für einen angenehmen Aufenthalt brauchen: ein eigenes Bad mit Dusche und WC sowie einen Flachbildfernseher für Ihre Unterhaltung. Genießen Sie die Morgensonne und starten Sie den Tag erfrischt in diesem gemütlichen Rückzugsort.

Wir freuen uns darauf, Sie in unserer Pension Hilligenlei willkommen zu heißen und Ihnen unvergessliche Urlaubsmomente zu bereiten!

Unsere Gästebewertungen Externe Bewertungen

Keine eigene Gästebewertungen
4,8
18 externe Bewertungen
5,0
Mai 2026
Einrichtungen:
5
Lage:
5
Preis-Leistung:
5
Reinigung:
5
Service vor Ort:
5
4,6
April 2026
Einrichtungen:
4
Lage:
5
Preis-Leistung:
4
Reinigung:
5
Service vor Ort:
5
4,0
September 2025
Einrichtungen:
4
Lage:
4
Preis-Leistung:
4
Reinigung:
4
Service vor Ort:
4
5,0
August 2025
Einrichtungen:
5
Lage:
5
Preis-Leistung:
5
Reinigung:
5
Service vor Ort:
5
5,0
August 2025
Einrichtungen:
5
Lage:
5
Preis-Leistung:
5
Reinigung:
5
Service vor Ort:
5
Allgemein:
War sehr zufrieden und würde sofort wiederkommen.
5,0
April 2025
Einrichtungen:
5
Lage:
5
Preis-Leistung:
5
Reinigung:
5
Service vor Ort:
5
4,8
Oktober 2024
Einrichtungen:
4
Lage:
5
Preis-Leistung:
5
Reinigung:
5
Service vor Ort:
5
Allgemein:
Sehr familiär geführte Pension Nähe Südstrand Wyk. Kommunikation mit Agentur verlief perfekt, schnelle Antworten auf Anfragen.
4,8
September 2024
Einrichtungen:
4
Lage:
5
Preis-Leistung:
5
Reinigung:
5
Service vor Ort:
5
5,0
August 2024
Einrichtungen:
5
Lage:
5
Preis-Leistung:
5
Reinigung:
5
Service vor Ort:
5
4,8
Juni 2024
Einrichtungen:
4
Lage:
5
Preis-Leistung:
5
Reinigung:
5
Service vor Ort:
5
Allgemein:
Es war eine sehr angenehme Woche im Haus Hillingelei . Ich würde jederzeit wiederkommen und weiterempfehlen , wenn jemand Ruhe sucht
4,8
Mai 2024
Einrichtungen:
4
Lage:
5
Preis-Leistung:
5
Reinigung:
5
Service vor Ort:
5
Allgemein:
Die Pension Hilligenlei ist eine sehr schöne und toll eingerichtete Frühstückspension. Alle Mitarbeiter waren sehr liebenswert und haben Extrawünsche ermöglicht. Die Nähe zum Strand ist perfekt. Ich würde definitiv wieder dort Urlaub machen.
4,2
April 2024
Einrichtungen:
4
Lage:
5
Preis-Leistung:
4
Reinigung:
4
Service vor Ort:
4
Allgemein:
Ich habe die Unterkunft bereits weiter empfohlen. Ich war mehrmals dort und bin für 2025 vorgemerkt.
5,0
Juli 2023
Einrichtungen:
5
Lage:
5
Preis-Leistung:
5
Reinigung:
5
Service vor Ort:
5
Allgemein:
War alles wunderbar.
4,4
Mai 2023
Einrichtungen:
4
Lage:
4
Preis-Leistung:
4
Reinigung:
5
Service vor Ort:
5
Allgemein:
Ich war mit Ihren Leistungen sehr zufrieden. Folgende Bitte habe ich an Sie: Ich habe in Zimmer 7 sehr gut auf der Matratze schlafen können. Bitte teilen Sie mir doch noch mal das Fabrikat mit. Vielen Dank dafür im voraus!
5,0
August 2022
Einrichtungen:
5
Lage:
5
Preis-Leistung:
5
Reinigung:
5
Service vor Ort:
5
5,0
August 2022
Einrichtungen:
5
Lage:
5
Preis-Leistung:
5
Reinigung:
5
Service vor Ort:
5
4,8
August 2022
Einrichtungen:
5
Lage:
5
Preis-Leistung:
5
Reinigung:
5
Service vor Ort:
4
Allgemein:
Von der Service Agentur wurde mir nur der Zimmerschlüssel und nicht der Haustürschlüssel übergeben!? Zum Glück war der Weg nicht weit zum Objekt, denn ich war mit der Bahn angereist und war zu Fuß. Der Service in der Anlage war sehr gut. Das Personal war sehr freundlich und sehr hilfsbereit. Ich kann die Unterkunft empfehlen.
4,6
April 2022
Einrichtungen:
5
Lage:
3
Preis-Leistung:
5
Reinigung:
5
Service vor Ort:
5
Allgemein:
Personal ist sehr nett und die Unterkunft ist sehr sauber.

Gesamte Ausstattung

  • Allg. Ausstattung

    • Allergikerfreundlich
    • Waschmaschine gemeinschaftliche Nutzung kostenpflichtig
    • Wäschetrockner gemeinschaftliche Nutzung kostenpflichtig
  • Außenanlage

    • Abstellmöglichkeit Fahrräder
    • Garten gem. Nutzung
    • Gartenmöbel
    • Kostenfreier PKW Stellplatz
    • Saisonstrandkorb im Garten
    • Sonnenliegen
    • Strandkorb (Garten oder Strand)
    • Unterstellmöglichkeit Fahrräder
  • Bade & Saunabereich

    • Extra Handtuchheizung
    • Haartrockner / Föhn
  • Badezimmer

    • Dusche
  • Basic

    • Größe
      14 m²
    • Küchen
      1
    • Wohnzimmer/Schlafzimmer
      1
  • Entfernung

    • Einkaufsmöglichkeit
      200 m
    • Golfplatz
      2 km
    • Innenstadt Wyk
      1 km
    • Zum bewachten Badestrand
      250 m
    • Zum Bäcker
      100 m
    • Zum Hafen
      2,5 km
    • Zum Schwimmbad Aqua Wyk
      1,5 km
  • Ferienobjekt & Lage

    • Haustiere leider nicht gestattet
    • Nichtraucherobjekt
  • Lage

    • Strandnah
  • Nachhaltigkeit

    • Einsatz von Solaranlagen
    • Energieeffiziente LED-Lampen (mind. 80%)
    • Gäste erhalten Infos zu Ökosystemen, Kultur, Verhaltensregeln des Reiseziels
    • Handtücher mehrmals verwendbar
    • Kein Einwegbesteck oder -geschirr
    • Keine Getränkeflaschen aus Plastik
    • Keine Plastikflaschen Shampoo/Duschgel
    • Keine Plastikstrohhalme/Rührstäbchen
    • Keine Zurschaustellung/Schädigung von nicht domestizierten Tieren
    • Mülleimer für Bioabfall
    • Mülltrennung
    • Präsentation lokaler Künstler in der Unterkunft
    • Regionale Lebensmittel (mind. 80%)
    • Reinigung während des Aufenthaltes kann abgewählt werden
    • Umweltfreundliche Reinigungsmittel
    • Unterkunft ist ohne Auto zu erreichen
    • Vegane Optionen auf Speisekarte
    • Vegetarische Optionen auf Speisekarte
    • Öffentliche Verkehrsmittel fußläufig (weniger als 500m)
    • Örtliche Reiseführer/Unternehmen bieten Touren/Aktivitäten
  • Region/Lage

    • Ruhige Lage
    • Zentrale Lage
  • Schlaf & Spielbereich

    • Liegefläche 90 x 200
  • Wohnbereich

    • Flachbild TV < 100 cm
    • Kostenfreies Internet / W-LAN
    • Stereoanlage / Radio
    • TV mit Sat/Kab./DVB-T

Prices and calendar

Kalender

Ankunft
Vorheriger Monat Nächster Monat
  • Juni 2026
    MoDiMiDoFrSaSo
    231234567
    24891011121314
    2515161718192021
    2622232425262728
    272930
    28
  • Juli 2026
    MoDiMiDoFrSaSo
    2712345
    286789101112
    2913141516171819
    3020212223242526
    312728293031
    32
   Verfügbarkeit am ausgewählten Datum prüfen
Frei
Nicht frei
   Ankunft möglich
Dauer

Preis

Zeitraum
Ankunft
Abreise
Dauer
1 Woche
Personen
1 Person

Bitte beachten

Ankunftszeit wurde nicht ausgewählt.
Vertrags- und Mietbedingungen