Penthouse mit Meerblick und Balkon in Westerland

Norderstrasse - 25980 - Westerland

Objekt Nr.: 540-305000-217685
Moderne Penthouse-Ferienwohnung in Westerland mit Meerblick, Balkon und Fahrstuhl, ideal für entspannte Urlaubstage.
  • Schlafzimmer 2
  • Badezimmer 1
  • Wohnfläche 60 m²
  • Haustiere 1
  • Kurzurlaub möglich Nein
  • Internet Ja
  • Satelliten-/Kabel TV Ja
  • Wasserblick Ja
  • Waschmaschine Ja
  • Trockner Ja
  • Geschirrspüler Ja
  • Nichtraucher Ja

Beschreibung

Ferienwohnung/App. für 4 Gäste mit 60m² in Westerland (305000) (Dachgeschoss)

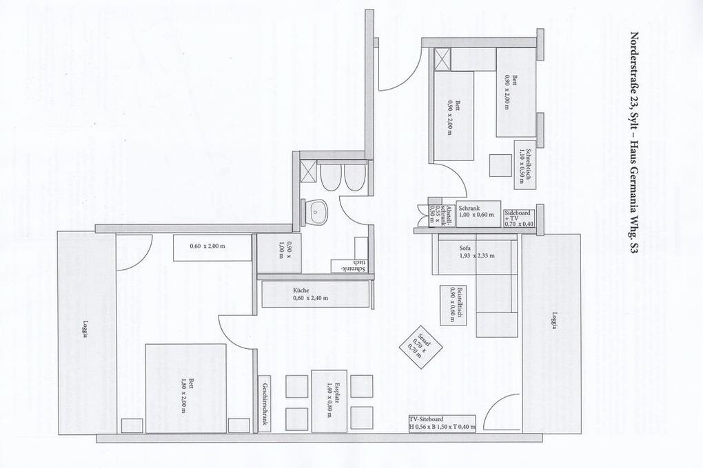
Penthouse-Ferienwohnung im Haus Germania. Modernes Wohnzimmer mit offener Küchezeile, Essecke, Couch zum Relaxen und West-Balkon mit kleinem Meerblick. Schlafzimmer mit Doppelbett und zweitem Balkon nach Osten. Zweites Schlafzimmer mit 2 Einzelbetten, Flur und Duschbad ( mit Oberlicht ) mit WC und Waschbecken. Alle Räume befinden sich auf einer Ebene. Es steht Ihnen ein Fahrstuhl und ein eigener PKW-Stellplatz ( Nr. 35 ) zur Verfügung.

Im Haus Germania steht Ihnen gegen eine geringe Gebühr Waschmaschine und Trockner zur Verfügung.

Mindestaufenthalt während der Sommerferien 14 ÜN, weniger ÜN auf Anfrage. Gerne dürfen Sie hier ein gut erzogenes Haustier mitbringen. Dafür wird dann eine einmalige Haustiergebühr berechnet.
Sonn- und Feiertage keine Abreisemöglichkeit.

Raumaufteilung

  • Schlafzimmer
    • Großes Doppelbett - Size: 181-210 cm
  • Schlafzimmer
    • 2 x Einzelbett - Size: 90-130 cm

Gesamte Ausstattung

  • Allg. Ausstattung

    • Heizung
    • Nichtraucher
    • Waschmaschine
    • WLAN
  • Allgemein

    • Fahrstuhl
    • Verdunkelungsmöglichkeiten
  • Außenanlage

    • Balkon / Loggia
    • PKW-Parkplatz
  • Basic

    • Größe
      60 m²
  • Haustiere

    • Haustiere erlaubt
  • Küche

    • Geschirrspülmaschine
  • Küchenausstattung

    • Herd (4 Kochfelder)
    • Kaffeemaschine
    • Wasserkocher
  • Lage

    • Meerblick/Seeblick
  • Service

    • Wäschetrockner
  • Wohnen & Schlafen

    • Fernseher

Prices and calendar

Kalender

Ankunft
Vorheriger Monat Nächster Monat
  • Juni 2026
    MoDiMiDoFrSaSo
    231234567
    24891011121314
    2515161718192021
    2622232425262728
    272930
    28
  • Juli 2026
    MoDiMiDoFrSaSo
    2712345
    286789101112
    2913141516171819
    3020212223242526
    312728293031
    32
   Verfügbarkeit am ausgewählten Datum prüfen
Frei
Nicht frei
   Ankunft möglich
Dauer

Preis

Zeitraum
Ankunft
Abreise
Dauer
1 Woche
Personen
Bis zu 4 Personen

Bitte beachten

Ankunftszeit wurde nicht ausgewählt.
Vertrags- und Mietbedingungen