Luxus-Hausteil unter Reet mit Sauna und Garten

Westerlandstraße - 25996 - Wenningstedt-Braderup (Sy

Objekt Nr.: 552-114317
Luxuriöses Hausteil unter Reet in Wenningstedt mit Sauna, Garten und hochwertiger Ausstattung auf 167 m².
  • Schlafzimmer 3
  • Badezimmer 3
  • Wohnfläche 167 m²
  • Haustiere Nicht erlaubt
  • Kurzurlaub möglich Ja
  • Entfernung Wasser 550 m
  • Einkaufen 500 m
  • Sauna Ja
  • Internet Ja
  • Satelliten-/Kabel TV Ja
  • Geschirrspüler Ja
  • Nichtraucher Ja

Beschreibung

Neues Luxus-Hausteil unter Reet, auf ca. 167 m² für bis zu 6 Personen

Luxus-Mittelhausteil unter Reet auf ca. 167m² Wohnfläche für bis zu 6 Personen mit einem großen Wellnessbereich mit Sauna, eigenem Garten und hochwertiger Einrichtung.

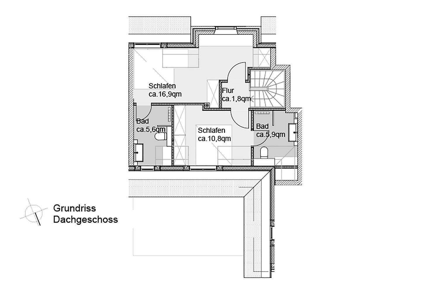
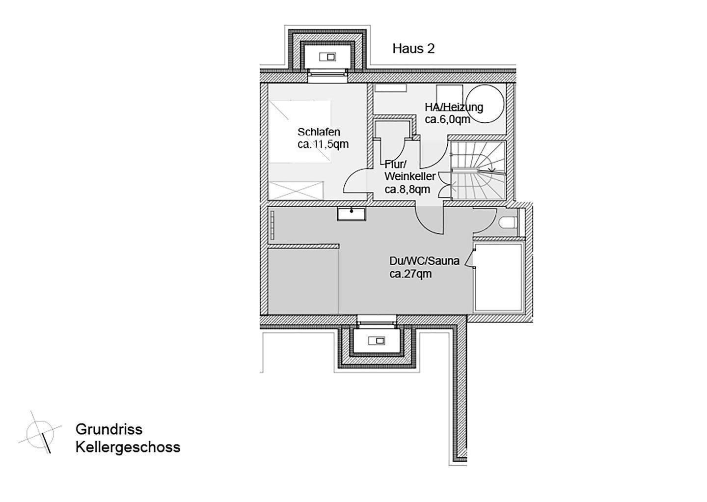
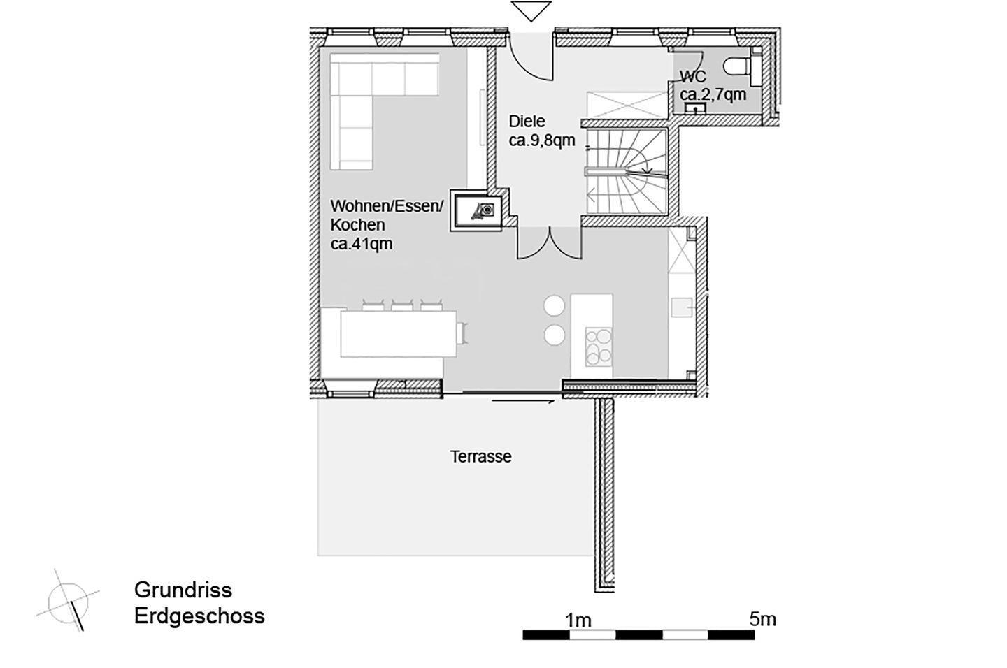
Exklusives und neues Luxus-Hausteil unter Reet in Wenningstedt auf ca. 167 m² für bis zu 6 Personen. Dieses neu gebaute und sehr stilvolle Domizil bietet viel Platz auf drei Ebenen mit eigenem Wellnessbereich. Im Erdgeschoss befinden sich der großzügige Wohn-/Koch-/Essbereich: Offene und perfekt ausgestattete Küche mit Bora-Dunstabzug und angrenzender gemütlicher Essecke. Im Wohnbereich erwarten Sie eine bequeme Wohnlandschaft, TV und Gas-Kamin. Ebenfalls gelangen Sie von hier aus in Ihren eigenen Garten mit Süd-Terrasse, hochwertigen Gartengestühl und Strandkorb. Das gesamte Domizil wird mit Erdwärme umweltfreundlich beheizt. Gäste-WC mit Fenster auf Wohnebene. Im Obergeschoss finden Sie: Schlafzimmer 1: Boxspringbett, hochwertige Einbauschränke, TV und Fenster. Badezimmer 1: WC, Dusche, Radio, Handtuchtrockner und Fenster. Schlafzimmer 2: Boxspringbett, hochwertige Einbauschränke, TV und Fenster. Badezimmer 2: WC, Dusche, Radio und Handtuchtrockner. Im Untergeschoss finden Sie: Schlafzimmer 3: Boxspringbett und hochwertige Einbauschränke, TV und Fenster. Wellnessbereich: Große Sauna, Kneipp-Schlauch, Dusche, WC, Radio, Ruheliegen und TV. Garten: Im Vorgarten steht Ihnen eine Fahrradgarage mit Anschluss für E-Bikes zur Verfügung sowie weiteres Gartengestühl. Lage: Sie wohnen zentral in Wenningstedt - Bäcker, Restaurants, Einkaufsmöglichkeiten sowie den Strand erreichen Sie in wenigen Minuten. Haustiere: Nicht erlaubt. Nichtraucherhaus Parkplatz: Ja

Raumaufteilung

  • Schlafzimmer, 2 Personen
    • Verdunklungsvorhänge, Kleiderschrank
    • Doppelbett (Offenes Fußteil)
  • Schlafzimmer, 2 Personen
    • Verdunklungsvorhänge, Kleiderschrank
    • Doppelbett (Offenes Fußteil)
  • Schlafzimmer, 2 Personen
    • Verdunklungsvorhänge, Kleiderschrank
    • Doppelbett (Offenes Fußteil)

Unsere Gästebewertungen Externe Bewertungen

Keine eigene Gästebewertungen
4,8
23 externe Bewertungen
5,0
Mai 2026
Allgemein:
Sehr tolles Objekt. Tolle Lage, super Ausstattung, nette Vermittlungsagentur. Absolut empfehlenswert.
4,8
März 2026
Allgemein:
Eine sehr schöne, modern eingerichtete Doppelhaushälfte. Ein Bad mit WC neben jedem Schlafraum bedeutet einen besonderen Komfort. Wir haben uns sehr wohl gefühlt.
4,5
Dezember 2025
Allgemein:
geschmackvoll eingerichtet Haus, guter Gesamtausstattung, sehr schöner Saunabereich,...schon wieder gebucht!
5,0
Februar 2025
Allgemein:
Ich habe meinen 60. Geburtstag in dem Haus mit meiner Familie gefeiert,es war perfekt in dieser Unterkunft,alle haben sich wohl gefühlt!
4,8
Dezember 2024
5,0
November 2024
5,0
September 2024
5,0
August 2024
Allgemein:
Das Haus ist wirklich toll und wunderschön! Wir (= meine Eltern 85 J., mein Bruder 60 J., meine Nichte 18 J. und ich 56 J.) haben eine ganz wundervolle Woche im Middenhus verbracht. Das Haus ist super ausgestattet, alles ist hochwertig, großzügig und es ist äußerst stil- und geschmackvoll eingerichtet. Es mangelt an nichts, im Gegenteil: wo sonst in Ferienhäusern/ -wohnungen mit 6 Schlafplätzen "wie bei den sieben Zwergen hinter den sieben Bergen" alles genau abgezählt ist (6 Messer, 6 Gabeln, 6 Tassen, 6 kleine Teller, 6 große Teller, 6 Wassergläser, 6 Weingläser... ;-)) ist alles in großzügiger Anzahl und guter Qualität vorhanden. Dies gilt auch für Töpfe, Pfannen, Handtücher, Küchenhandtücher, Teelichter, etc.. In jedem Zimmer gibt es einen großen Flatscreen-TV, ein weiteres Highlight ist die (2 x genutzte) Sauna. Die Terrasse mit großem Tisch und der Garten mit einem schönen Strandkorb laden ebenfalls zum Verweilen ein. Zum Glück hört man auch von der Hauptstraße so gut wie keinen Verkehrslärm. Auch die Erstausstattung für die Reinigung ist ausreichend bemessen, einschließlich Tabs für die Spülmaschine, eine Rolle Küchentücher, kleines Spülmittel, Schwamm/ Tuch etc., so dass man dafür nicht direkt zum Einkaufen losziehen muss. Besonders hervorzuheben ist das großzügige "Willkommens-Paket" von Sylt-ER: Prosecco, tolle Stranddecke, 2 wiederbefüllbare Wasserflaschen, Einkaufstaschen, hierfür nochmal herzlichen Dank! Außerdem ist der Service super, es gab zwischendurch ein kleines Problem mit dem WLAN, das wurde umgehend gelöst. Die Lage ist sehr gut, der Strand ist locker zu Fuß erreichbar (selbst meine Mutter, die momentan etwas eingeschränkt ist, konnte gut hin und zurücklaufen). Wer kein Auto hat kann mit dem Bus fahren, die Haltestelle ist in der Nähe, sowie einige Bäckereien, Edeka, Fisch Blum und diverse Restaurants. Fazit: es war toll und wir werden sicher wiederkommen!
4,8
Juni 2024
4,8
Dezember 2023
4,8
November 2023
4,5
August 2023
4,8
Juli 2023
5,0
Mai 2023
Allgemein:
Wir hatten einen sehr schönen Aufenthalt im Middenhus. Das Haus war toll ausgestattet. Es hat uns nichts gefehlt. Wir kommen sehr gerne wieder!
5,0
März 2023
Allgemein:
Wir haben eine schöne Zeit im Middenhus verbracht. Das Haus ist sehr gemütlich, mit dem Kamin und der gemütlichen Chill-Ecke. In der Sauna kann man sehr gut abschalten und entspannen. Heike Z.
4,5
Oktober 2022
4,8
Oktober 2022
4,5
Oktober 2022
4,3
September 2022
5,0
März 2022
4,5
August 2021
Allgemein:
Ein schönes, neues Mittelhaus in bester Lage in Wenningstedt. Leider sind die Haus-Trennwände zu den Nachbarn links und rechts baubedingt sehr hellhörig - das darf einen nicht stören. Man hört die Nachbarn niesen, staubsaugen, ... Wunderschöne windgeschützte Terasse, sehr schöner Wellness-Bereich und schöne, durchdachte Aufteilung der Räume im Haus. Die Ausstattung mit Geschirr, Gläsern, Kochzubehör ist top! Wir haben uns wohl geführt und hatten 14 entspannte Tage in diesem Objekt.
5,0
Juni 2021
Allgemein:
Super schönes neues Hausteil mit Panorama-Schiebetür zur Terrasse. Wir haben uns sofort wie zuhause gefühlt. Ebenso die super zentrale Lage in Wenningstedt und von der Straße haben wir nicht viel mitbekommen. Wir kommen gerne wieder. Tina Juni 2021
4,8
Mai 2021

Gesamte Ausstattung

  • Aktivitäten

    • Wellness
  • Bad

    • Anzahl der Duschen
      3
    • Badezimmerfenster
    • Dusche
    • Gäste-WCs
      1
    • Handtücher
    • Haartrockner
    • Waschbecken
    • WC
    • Wäschetrockner
  • Basic

    • Anzahl der Stockwerke
      3
    • Kinder willkommen
    • Nichtraucher
    • Quadratmeter
      167 m²
    • Zimmer
      3
  • Draußen

    • Anzahl der Parkplätze
      1
    • Garten
    • Gartenmöbel
    • Privater P-Platz
    • Terrasse
  • Entfernung

    • Entfernung Einkauf
      500 m
    • FlughafenEntfernung
      2900 km
    • MeerEntfernung
      550 m
    • RestaurantEntfernung
      130 m
    • StadtEntfernung
      3,4 km
    • Strandentfernung
      550 m
  • Küche

    • Backofen
    • Espressomaschine
    • Gefrierfach
    • Kaffeemaschine
    • Kochutensilien
    • Küche
    • Kühlschrank
    • Microwelle
    • Rührgerät
    • Spülmaschine
    • Teller
    • Toaster
    • Wasserkocher
  • Unterkunft

    • Anrichte
    • Anzahl der Fernseher
      4
    • Betten
      6
    • Bügelbrett
    • Bügeleisen
    • Digitales Fernsehen
    • Doppelbetten
      3
    • Esstisch
    • Feueralarm
    • Fußbodenheizung
    • Ganzkörperspiegel
    • Heizung
    • Herd
    • HIFI
    • Internet
    • Jalousie
    • Kamin
    • Kleiderschrank
    • Lounge-Sitzgelegenheiten
    • Luxus
    • Mülleimer
    • Möglichkeit zur Raumverdunkelung
    • Radio
    • Rauchmelder
    • Safe
    • Sauna
    • Schminkspiegel
    • Schuhschrank
    • Sitzgelegenheiten im Esszimmer
    • Sofa
    • Spiegel
    • Staubsauger
    • TV
    • Warmes Wasser
    • Waschmaschine
    • WLAN
    • Wohnzimmer
    • Wäscheständer

Kurzurlaub

Sie haben die Möglichkeit einen Kurzurlaub in ausgewählten Zeiträumen des Jahres zu machen.

Prices and calendar

Kalender

Ankunft
Vorheriger Monat Nächster Monat
  • Juni 2026
    MoDiMiDoFrSaSo
    231234567
    24891011121314
    2515161718192021
    2622232425262728
    272930
    28
  • Juli 2026
    MoDiMiDoFrSaSo
    2712345
    286789101112
    2913141516171819
    3020212223242526
    312728293031
    32
   Verfügbarkeit am ausgewählten Datum prüfen
Frei
Nicht frei
   Ankunft möglich
Dauer
Personen

Preis

Zeitraum
Ankunft
Abreise
Dauer
1 Woche
Personen
Keine Personen ausgewählt

Bitte beachten

Ankunftszeit wurde nicht ausgewählt.
Es wurden keine Personen ausgewählt.
Vertrags- und Mietbedingungen