Gemütliche Wohnung "Strandiris" in Wenningstedt

Feldgasse - 25996 - Sylt / Ot Wenningstedt -

Objekt Nr.: 552-126129
Bild 3
7 Übernachtungen
Ab EUR 620,-
4 Erwachsene 0 Kinder
Ruhige Ferienwohnung "Strandiris" in Wenningstedt, Sylt, mit Parkplatz, Balkon und nahe Strand, Shopping und Restaurants.
  • Schlafzimmer 1
  • Badezimmer 1
  • Wohnfläche 40 m²
  • Haustiere Nicht erlaubt
  • Kurzurlaub möglich Ja
  • Entfernung Wasser 1 km
  • Internet Ja
  • Geschirrspüler Ja
  • Nichtraucher Ja

Beschreibung

Moin Moin und Willkommen in der "Strandiris".

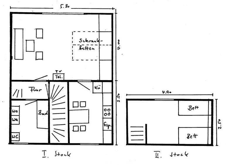
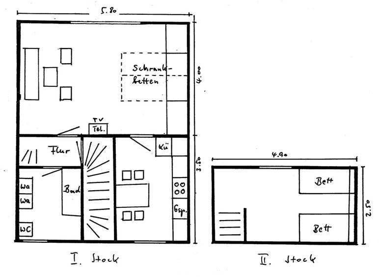
Moin Moin und Willkommen in der "Strandiris". Diese ruhig gelegene Wohnung befindet sich in einem zweistöckigen kleinen Reihenhaus im ersten Stock. Die "Strandiris" ist circa 50 Quadratmeter groß, hat einen eigenen Parkplatz. Die Umgebung ist hier in Wenningstedt geprägt von Einfamilienhausbebauung. Zum Strand, zu Shopping und zu den Restaruants ist es von hier aus nicht weit.

Moin Moin und Willkommen in der "Strandiris". Diese ruhig gelegene Wohnung befindet sich in einem zweistöckigen kleinen Reihenhaus im ersten Stock. Die "Strandiris" ist circa 50 Quadratmeter groß, hat einen eigenen Parkplatz. Die Umgebung ist hier in Wenningstedt geprägt von Einfamilienhausbebauung. Zum Strand, zu Shopping und zu den Restaruants ist es von hier aus nicht weit. Kinder fühlen sich natürlich in allen Inselorten wohl, kein Wunder, verfügt Sylt doch mit über 40 Kilometern feinsandigem Strand über die größte Sandkiste der Welt, aber Wenningstedt hat sich einen Namen als Familienziel gemacht. Im Winter wird eine Eisbahn aufgebaut direkt am Kliff, beim futuristischen und unübersehbaren Gosch-Palast, im Sommer wird dort Beachvolleyball gespielt und ganzjährig sorgt "Sylt4Fun"auch noch in der Norddörferhalle mit Boulderwand, Trampolin, Rollerparcours und anderen wechselnden Gimmicks für Spaß.

Raumaufteilung

  • Schlafzimmer, 2 Personen
    • Verdunklungsvorhänge, Kleiderschrank
    • 2 x Einzelbett
  • Wohnzimmer, 2 Personen
    • Verdunklungsvorhänge, Kleiderschrank
    • Doppel-Schrankklappbett (Offenes Fußteil)

Unsere Gästebewertungen Externe Bewertungen

Keine eigene Gästebewertungen
4,4
28 externe Bewertungen
5,0
Oktober 2025
0,0
September 2025
3,0
Juli 2025
4,0
April 2025
0,0
April 2025
0,0
Dezember 2024
4,5
August 2024
5,0
Juni 2024
0,0
Juni 2024
4,0
April 2024
0,0
Oktober 2023
0,0
September 2023
5,0
September 2023
5,0
August 2023
0,0
Mai 2023
0,0
Mai 2023
0,0
April 2023
0,0
August 2022
0,0
Mai 2022
0,0
Mai 2022
0,0
Oktober 2021
0,0
Oktober 2021
0,0
September 2021
0,0
September 2021
0,0
September 2021
0,0
August 2021
0,0
Juni 2021
0,0
Mai 2021

Gesamte Ausstattung

  • Aktivitäten

    • Fitnesstraining
    • Joggen
    • Nordic Walking
    • Radfahren
  • Bad

    • Anzahl der Duschen
      1
    • Badezimmerfenster
    • Dusche
    • Handtücher
    • Haartrockner
    • Waschbecken
    • WC
  • Basic

    • Anzahl der Stockwerke
      2
    • Kinder willkommen
    • Nichtraucher
    • Quadratmeter
      40 m²
    • Zimmer
      2
  • Draußen

    • Anzahl der Parkplätze
      1
    • Gartenmöbel
  • Entfernung

    • FlughafenEntfernung
      2300 km
    • MeerEntfernung
      1 km
    • Strandentfernung
      1 km
  • Küche

    • Backofen
    • Gefrierfach
    • Kochutensilien
    • Küche
    • Kühlschrank
    • Microwelle
    • Spülmaschine
    • Teller
    • Toaster
    • Wasserkocher
  • Unterkunft

    • Babybett
      1
    • Balkon
    • Betten
      4
    • Bettwäsche
    • Bücher
    • Einkaufen
    • Einzelbetten
      2
    • Erstausstattung
    • Esstisch
    • Esszimmer
    • Familie
    • Feueralarm
    • Ganzkörperspiegel
    • Geschlossenes Grundstück
    • Heizung
    • Herd
    • Hochstuhl
      1
    • Internet
    • Jalousie
    • Klappbare Schrankbetten
      1
    • Kleiderschrank
    • Lounge-Sitzgelegenheiten
    • Mülleimer
    • Möglichkeit zur Raumverdunkelung
    • Rauchmelder
    • Schminkspiegel
    • Sessel
    • Sitzgelegenheiten im Esszimmer
    • Sofa
    • Spiegel
    • Staubsauger
    • Tages-Spa
    • TV
    • Warmes Wasser
    • Waschmaschine
    • WLAN
    • Wohnzimmer

Kurzurlaub

Es besteht eine begrenzte Möglichkeit das ganze Jahr einen Kurzurlaub zu machen, typischerweise ausserhalb der Hochsaison.

Prices and calendar

Kalender

Ankunft
Vorheriger Monat Nächster Monat
  • Juli 2026
    MoDiMiDoFrSaSo
    2712345
    286789101112
    2913141516171819
    3020212223242526
    312728293031
    32
  • August 2026
    MoDiMiDoFrSaSo
    3112
    323456789
    3310111213141516
    3417181920212223
    3524252627282930
    3631
   Verfügbarkeit am ausgewählten Datum prüfen
Frei
Nicht frei
   Ankunft möglich
Dauer
Personen

Preis

Zeitraum
Ankunft
Abreise
Dauer
1 Woche
Personen
Keine Personen ausgewählt

Bitte beachten

Ankunftszeit wurde nicht ausgewählt.
Es wurden keine Personen ausgewählt.
Vertrags- und Mietbedingungen