Modernes Apartment mit großem Garten auf Sylt
Süderhörn - 25992 - List Auf Sylt
Objekt Nr.: 530-400461
6 Personen
Das Apartment Blomquist auf Sylt bietet modernen Komfort in ruhiger Lage mit großem Garten und Nähe zu Strand und Hafen.
-
Schlafzimmer 3
-
Badezimmer 1
-
Wohnfläche 90 m²
-
Haustiere Nicht erlaubt
-
Kurzurlaub möglich Ja
-
Entfernung Wasser 1 km
-
Einkaufen 1 km
-
Sauna Ja
-
Internet Ja
-
Satelliten-/Kabel TV Ja
-
Geschirrspüler Ja
-
Nichtraucher Ja
Beschreibung
App. Blomquist
Appartement Blomquist:
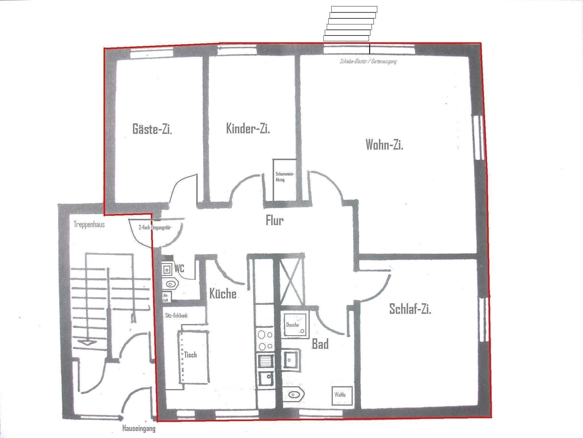
Das Apartment Blomquist bietet Ihnen alles, um sich in Ihrem Urlaub auf Sylt sofort wie zu Hause zu fühlen. Das schöne Reetdachhaus mit Heckenrosenwall liegt am Ende einer ruhigen Anwohnerstraße. Die moderne und gemütliche Ferienwohnung ist perfekt für Familien und alle, die gern etwas mehr Platz haben möchten. Es gibt ein großes Wohnzimmer, zwei Schlafzimmer mit Doppelbett und ein Zimmer mit einem Etagenhochbett für z.B. zwei Kinder (Matratzenlänge 2m). Die Wohnung ist 2022 renoviert und erneuert worden. Ein Highlight ist der wunderschöne, große Garten, der an ein Wäldchen angrenzt. Sie können dort im eigenen Strandkorb liegen oder auf den Gartenmöbeln entspannen, draußen essen und Kinder ohne Sorge spielen lassen. Und sollte das Wetter doch mal typisch norddeutsch sein, bietet das Wohnzimmer genügend Platz, eine große moderne Couchgarnitur, einen Smart TV und WLAN. Auch die Küche besitzt eine gemütliche, typisch friesische Ess-Ecke für die ganze Familie und ist vollausgestattet, inklusive Nespressomaschine, Milchaufschäumer, Wasserkocher, Kühlschrank, Herd/Backofen und Spülmaschine. Das Tageslichtbad bietet eine Dusche, einen modernen Handtuchheizkörper und eine Waschmaschine mit Trocknerfunktion. Zusätzlich gibt es ein kleines separates Gäste-WC.
Vor dem Haus gibt es die Möglichkeit, Fahrräder abzustellen. Ein Fahrradverleih ist gut zu Fuß zu erreichen. Auf der gegenüberliegenden Straßenseite des Hauses führen Treppen in einen schönen kleinen Dünenabschnitt, der betreten werden darf. Ein großer Supermarkt ist mit dem Auto nur 3min entfernt, ebenso nah ist die Promenade von List, der Lister Hafen mit seinen Restaurants (Gosch, etc.) und kleinen Shops und Läden. Bekannte und beliebte Sylter Restaurants (Königshafen, LA Sylt, Wonnemeyer, usw.) sind ebenfalls sehr gut zu erreichen.
Das Apartment ist ein perfekter Ausgangspunkt für Ausflüge mit dem Fahrrad oder dem Auto, zum Beispiel in die Inselmitte ? vorbei an der berühmten Wanderdüne ? nach Kampen oder Wenningstedt. Oder in die andere Richtung, noch weiter in den Norden, zum nördlichsten Punkt Deutschlands am Strand des wunderschönen Ellenbogen.
Wir freuen uns, Sie in unserer schönen Ferienwohnung begrüßen zu dürfen!
Das Apartment Blomquist bietet Ihnen alles, um sich in Ihrem Urlaub auf Sylt sofort wie zu Hause zu fühlen. Das schöne Reetdachhaus mit Heckenrosenwall liegt am Ende einer ruhigen Anwohnerstraße. Die moderne und gemütliche Ferienwohnung ist perfekt für Familien und alle, die gern etwas mehr Platz haben möchten. Es gibt ein großes Wohnzimmer, zwei Schlafzimmer mit Doppelbett und ein Zimmer mit einem Etagenhochbett für z.B. zwei Kinder (Matratzenlänge 2m). Die Wohnung ist 2022 renoviert und erneuert worden. Ein Highlight ist der wunderschöne, große Garten, der an ein Wäldchen angrenzt. Sie können dort im eigenen Strandkorb liegen oder auf den Gartenmöbeln entspannen, draußen essen und Kinder ohne Sorge spielen lassen. Und sollte das Wetter doch mal typisch norddeutsch sein, bietet das Wohnzimmer genügend Platz, eine große moderne Couchgarnitur, einen Smart TV und WLAN. Auch die Küche besitzt eine gemütliche, typisch friesische Ess-Ecke für die ganze Familie und ist vollausgestattet, inklusive Nespressomaschine, Milchaufschäumer, Wasserkocher, Kühlschrank, Herd/Backofen und Spülmaschine. Das Tageslichtbad bietet eine Dusche, einen modernen Handtuchheizkörper und eine Waschmaschine mit Trocknerfunktion. Zusätzlich gibt es ein kleines separates Gäste-WC.
Vor dem Haus gibt es die Möglichkeit, Fahrräder abzustellen. Ein Fahrradverleih ist gut zu Fuß zu erreichen. Auf der gegenüberliegenden Straßenseite des Hauses führen Treppen in einen schönen kleinen Dünenabschnitt, der betreten werden darf. Ein großer Supermarkt ist mit dem Auto nur 3min entfernt, ebenso nah ist die Promenade von List, der Lister Hafen mit seinen Restaurants (Gosch, etc.) und kleinen Shops und Läden. Bekannte und beliebte Sylter Restaurants (Königshafen, LA Sylt, Wonnemeyer, usw.) sind ebenfalls sehr gut zu erreichen.
Das Apartment ist ein perfekter Ausgangspunkt für Ausflüge mit dem Fahrrad oder dem Auto, zum Beispiel in die Inselmitte ? vorbei an der berühmten Wanderdüne ? nach Kampen oder Wenningstedt. Oder in die andere Richtung, noch weiter in den Norden, zum nördlichsten Punkt Deutschlands am Strand des wunderschönen Ellenbogen.
Wir freuen uns, Sie in unserer schönen Ferienwohnung begrüßen zu dürfen!
Unsere Gästebewertungen Externe Bewertungen
Ausstattung
-
Aktivität einrichtungen
-
Golf
-
-
Entfernungen
-
Zum Arzt1,5 km
-
Zum Bäcker1 km
-
Zum Flughafen10 km
-
Zum Krankenhaus/Klinik10 km
-
Zum Radweg500 m
-
Zum Restaurant1 km
-
Zum Strand1 km
-
Zum Supermarkt1 km
-
Zum Wanderweg500 m
-
Zum Zentrum1 km
-
Zur Tourist-Information1 km
-
-
Grundeinrichtungen
-
Größe90 m²
-
-
Kinder einrichtungen
-
Familienfreundlich
-
-
Serviceeinrichtungen
-
Backofen
-
Bad/WC
-
Dusche/WC
-
Gefriermöglichkeit
-
Internet - WLAN
-
Kabel / Sat
-
Kühlschrank
-
Mehrere Schlafzimmer
-
Nichtraucher
-
Separate Küche
-
Spülmaschine
-
Tiere nicht erlaubt
-
TV
-
-
Umliegende einrichtungen
-
Garten zur Nutzung
-
Parkplatz
-
-
Unterkünfte
-
Gemeinschaftssauna
-
Internet im öff. Bereich
-
Nichtraucherhaus
-
Radfreundlich
-
Wanderfreundlich
-
Kurzurlaub
Es besteht eine begrenzte Möglichkeit das ganze Jahr einen Kurzurlaub zu machen, typischerweise ausserhalb der Hochsaison.
Prices and calendar
Kalender
Dauer
Personen
Preis
Zeitraum
- Ankunft
- Abreise
- Dauer
- 1 Woche
Personen
Keine Personen ausgewählt
Bitte beachten
Ankunftszeit wurde nicht ausgewählt.
Es wurden keine Personen ausgewählt.